Institut provincial pour aveugles et amblyopes
Jalon XX
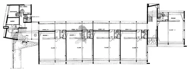
Ecoles d'enseignement spécial
1950 -
1950 -
1953 - 1954
1953 - 1954
1953 - 1954
1959 - 1963
1959 - 1963
1959 - 1963
Réalisé
À quelques kilomètres de Mons, sur un terrain boisé où s'élève un petit château, la Province de Hainaut décide de réaliser un village pour aveugles. Le futur directeur, M. Faymonville, confie le projet à Jacques Dupuis.
Le complexe doit comprendre une série de pavillons d'habitation, une école pour garçons et une autre pour filles, des locaux médicaux et administratifs, une salle de jeux et de gymnastique, un potager, une plaine des sports et une salle des fêtes.
L'implantation générale et le pavillon type sont basés sur une logique qui dépasse la seule finalité fonctionnelle. Elle offre une vue d'ensemble où toute la générosité créative de Dupuis a la possibilité de s'exprimer. Les premières esquisses témoignent de la maturité exceptionnelle de l'architecte, alors âgé de 36 ans. Il inscrit son travail dans l'évolution de l'architecture contemporaine en anticipant plusieurs autres figures internationales sur le plan de la créativité.
Plusieurs avant-projets se succèdent à partir de 1950, mais l'évolution des exigences et les diminutions des moyens financiers vont conditionner les solutions réalisées en réduisant le nombre et l'ambition des constructions. Il s'agit néanmoins d'une expérience exceptionnelle. Même dans sa version finale, réalisée en plusieurs phases, cet institut constitue un projet dans lequel ses différentes parties sont liées par un schéma organique et libre, mais aussi fonctionnel et sans concessions gratuites.
Pour Dupuis, la déstructuration géométrique joue un rôle primordial dans l'organisation de l'espace. Les nombreuses échappées visuelles qu'elle engendre produisent des perspectives diagonales soutenues par des appels de lumière inattendus. Dans les premiers bâtiments réalisés avec Simone Guillissen-Hoa, Dupuis montre comment développer une architecture pleine de qualités spatiales et adaptée à ces finalités si particulières. Avec aisance et modestie, il développe un vocabulaire riche en travaillant sur les contrastes plastiques, les ombres, les appareillages de briques, etc.
Le centre médico-psychologique et l'école des filles, derniers bâtiments réalisés, sont reliés par un jeu d'auvents aux puissantes qualités expressives.
Maurizio Cohen
| Sources |
|---|
| «École pour aveugles et déficients à Ghlin» dans Architecture, n° 34-35, 1960, p.519-521. |
| Bontridder Albert, «Jacques Dupuis où l'architecture perdue et retrouvée» dans Architecture, n° 39-40, 1961, p.740-744. |
| Thomaes Jan & Cohen Maurizio, Jacques Dupuis, l'architecte, Bruxelles, La lettre volée, 2000, p.178-183. |
| «L'institut pour aveugles de Ghlin» sur le site Jacques Dupuis, en ligne http://www.jacquesdupuis.be/pg/archi/w13-ghlin.html, consulté le 13/11/2013. |
| «Inventaires» sur le site Jacques Dupuis, en ligne http://www.jacquesdupuis.be/pg/archi/inventaire.html, consulté le 08/11/2013. |