Siège de la Compagnie nationale à portefeuille

Bureaux

1995 - 1997 1995 - 1997
Réalisé

Pour ce grand bâtiment en bordure d'une vaste forêt protégée, le maître d'ouvrage demande de s'inspirer de la villa Rotonda de Palladio ainsi que de la Maison-Blanche. La difficulté du projet a été de satisfaire ces désirs tout en concevant de l'architecture contemporaine. Le bâtiment se veut simple, raffiné, ample par ses proportions et ses hauteurs de plafonds. 

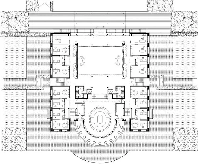
De composition classique et de plan carré, il est orienté selon les axes cardinaux. Toutes les fonctions s'articulent autour d'un vaste préau en double hauteur orienté sud. Il est surmonté de salles à manger et de salons de réception avec leurs dépendances. La partie sud est réservée à l'accueil, tandis que la partie nord est occupée au rez-de-chaussée par la bibliothèque et de grandes salles de réunion, servant de lieu de rencontre aux différentes sociétés de la CNP. 

Au premier étage sont aménagés les locaux de la présidence du groupe et ses dépendances. Un appartement de fonction occupe le penthouse. Les ailes est et ouest, au rez-de-chaussée et au premier étage, sont réservées aux bureaux de la direction. L'espace intérieur inspire une impression de calme par sa grande hauteur, ses murs enduits, son parquet en bois et son éclairage naturel. 

De vastes verrières horizontales séparent les quatre volumes principaux (le préau, la présidence et les deux entités de bureaux) pour diffuser la lumière naturelle au cœur du bâtiment et au sein des circulations. Le tracé du parc entourant le bâtiment a été retravaillé : géométrisé aux abords de l'immeuble et le long des bassins avant de reprendre son caractère naturel plus loin. Une butte de terre a été dressée au nord pour fermer la perspective et limiter les vues directes sur la propriété.

Alice Galligo et Maurizio Cohen

Sources
«Société Financière : une architecture classique, sobre et raffinée» dans Bâtiment Bouwkunde, n° 259, juin-juillet, 1997, p.19-26.
Samyn Philippe & Loze Pierre, Devenir moderne ? Entretiens sur l'art de construire, Sprimont, Mardaga, 1999, p.154-159.
Samyn Philippe, «Siège social et central d'une société financière, Belgique» dans Bulletin de la Classe des Beaux-Arts, Académie Royale des Sciences, des Arts & des Lettres de Belgique, n° X, 1999, p.99-122.
Archives Philippe Samyn et Associés..