Barrage de la Plate Taille

Autres bâtiments liés au transport fluvial

1973 - 1980 1973 - 1980
Réalisé

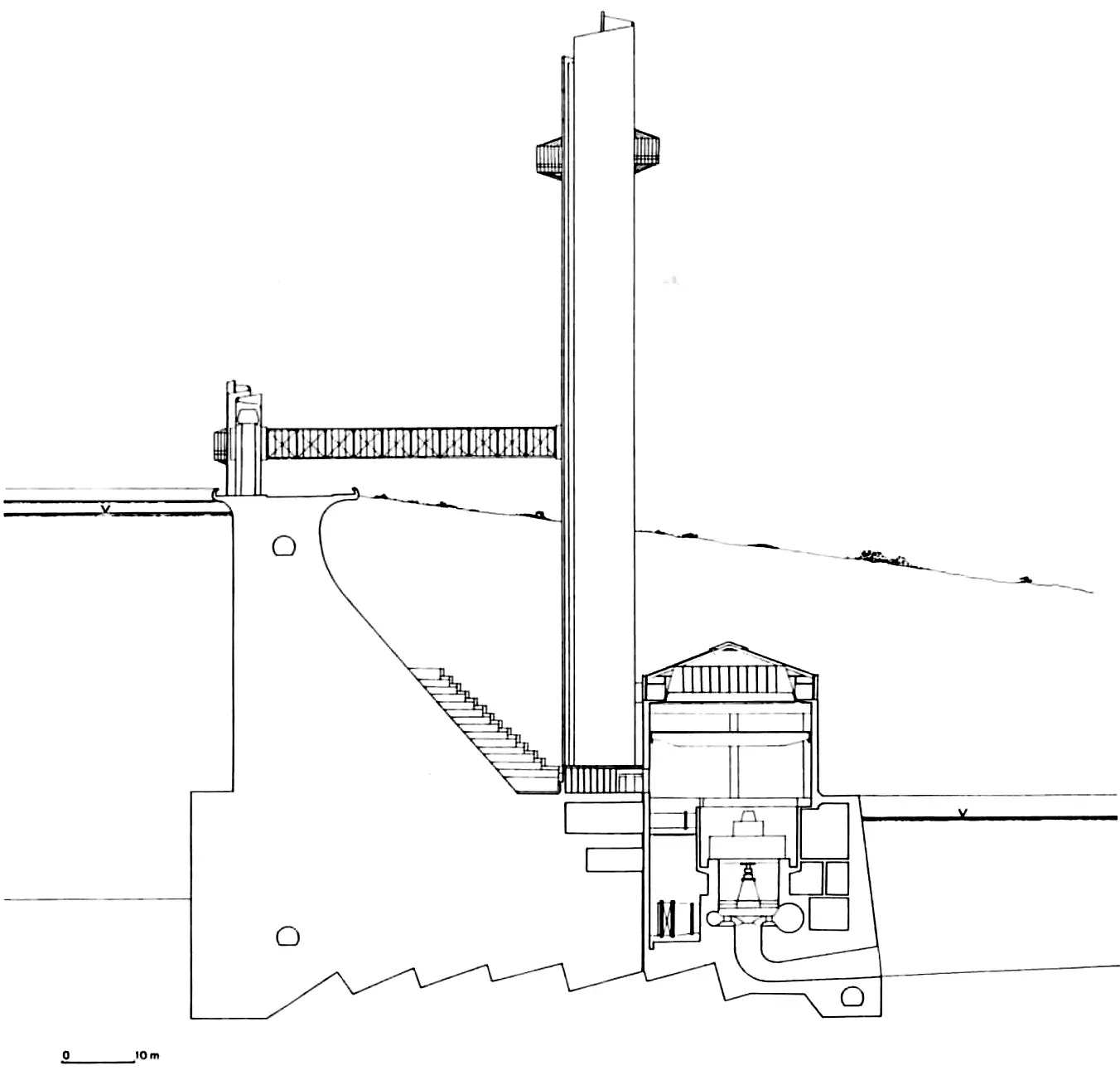
Sur les bords des lacs de l'Eau d'Heure, à la croisée entre les communes de Bossu-les-Walcourt et Cerfontaine, le barrage de la Plate Taille a été construit dans l'optique d'améliorer la qualité de l'eau de la Sambre avant son arrivée à Charleroi. 

Pensée non seulement comme un objet technique, la construction se compose de toute une série de turbines, mais a aussi été envisagée comme un lieu dédié à des visiteurs. Ainsi, lors de la conception, l'architecte et l'ingénieur considèrent avant tout ce qui est donné à voir au curieux qui déambule entre les rives du barrage et pas seulement au technicien qui va entretenir les cuves de la centrale. 

Dès les abords, une attention toute particulière est donnée au traitement de l'éclairage et des garde-corps. Les belvédères, outils de surveillance du bon fonctionnement de l'équipement, sont traités avec finesse, tout en vitrage, afin de créer chez le promeneur une vraie surprise.

Anne-Laure Iger