Maison communale de Frasnes
Hôtel de ville, cité/antenne administrative ou bâtiment institutionnel
1999 - 2006
1999 - 2006
Réalisé
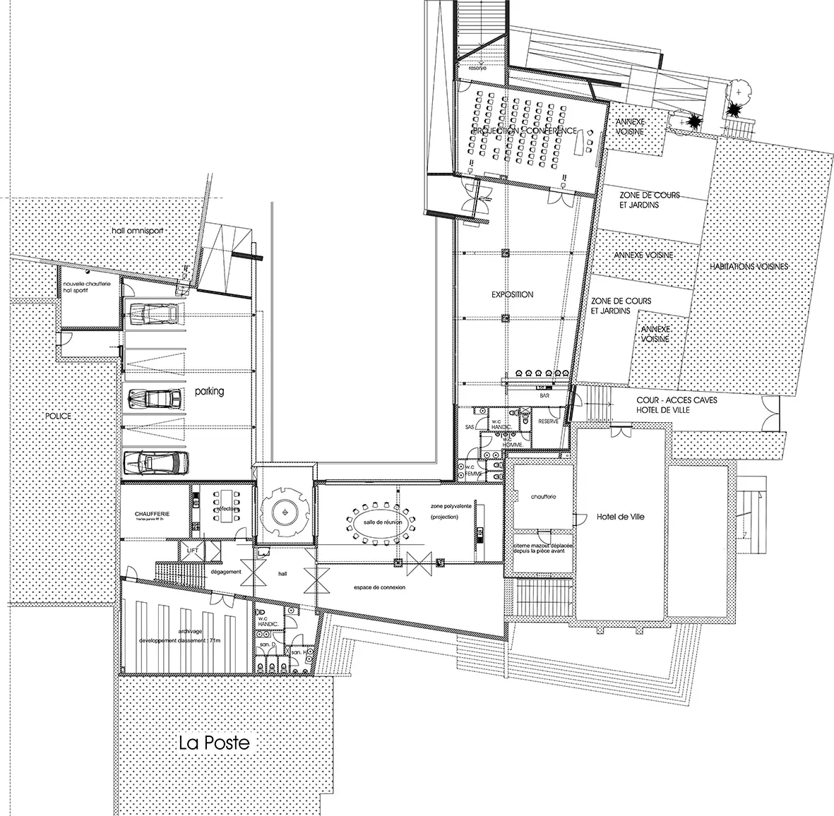
En 1999, la commune de Frasnes lance un concours prévoyant de déplacer une partie de ses services administratifs, alors logés au sein d'une annexe vieillissante. L'idée est de remplacer celle-ci par une extension contemporaine à la hauteur de l'édifice historique siégeant sur la place principale. Au vu de l'organisation chaotique et du fort dénivelé fractionnant l'îlot, l'équipe lauréate détourne la question, faisant le choix de traiter la problématique urbaine, par le biais de la réponse architecturale.
La proposition, en s'inscrivant depuis le cœur de la parcelle, entend rendre cohérence au tissu, tout en favorisant sa pratique par les habitants. D'où la forme alambiquée du projet : le bâti neuf reprend les accidents du bâti ancien, pour les absorber dans une géométrie rigoureuse. S'opère ainsi une dissociation claire entre les deux époques, tant dans l'implantation que dans la volumétrie. Deux niveaux principaux sont définis : un niveau bas accueillant la majorité des fonctions autour d'une cour partagée, et un niveau haut dégageant un espace paysager sur la toiture des premiers. Non programmé, cet espace « en plus » est offert à la ville, dessinant une promenade vers l'intra-îlot et les nouveaux locaux de la mairie, que complètent une bibliothèque et une salle d'exposition. En lieu et place de l'annexe non reconstruite, un vide cadre le Pays des Collines.
Charlotte Lheureux
| Sources |
|---|
| Architectures, Wallonie-Bruxelles. Inventaires #0 Inventories 2005-2010, Bruxelles, Wallonie-Bruxelles Architectures, 2010. |
| Année | Prix | Distinction |
|---|---|---|
| 1999 | Prix d'Architecture du Hainaut | mention |