Home Saint-Joseph

Homes / Maisons de retraite

1967 1967 1967
Réalisé

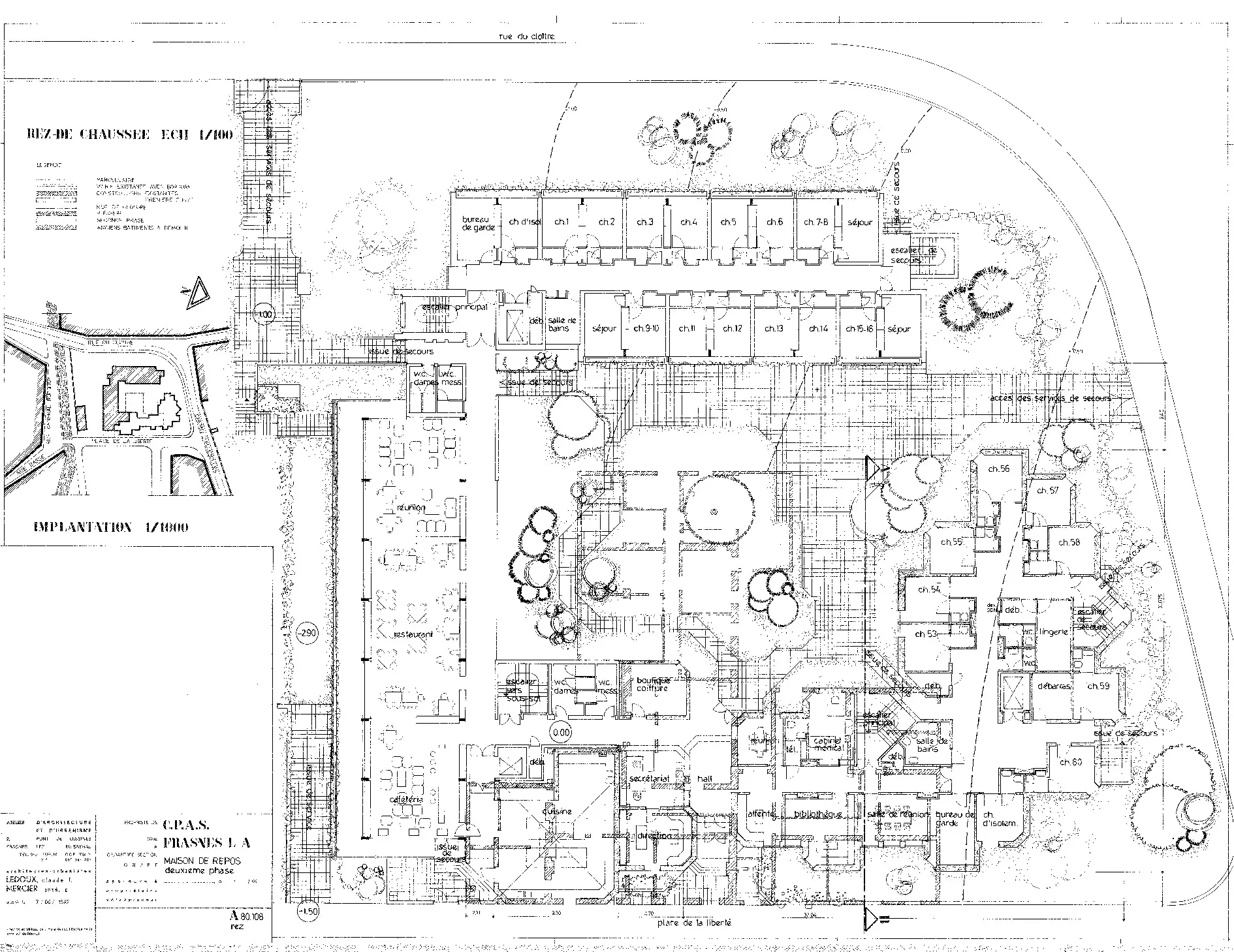
La singularité du home Saint-Joseph est de porter l'empreinte de deux courants d'architecture influents et opposés. C'est en 1967 que le CPAS prévoit d'accoler à l'ancien home un bâtiment d'une capacité de cinquante-quatre lits. Cette première phase permet aux auteurs du projet d'appliquer les enseignements modernistes reçus de J. Dubuisson à Saint-Luc Tournai. Ils font montre d'un grand souci de rationalité, qui se traduit en plan par un couloir distributif central et en façade par la répétition d'éléments préfabriqués en béton, combinant allèges isolées et jardinières. Les ouvrants standardisés comportent stores et moustiquaires intégrés. Les portiques structurels asymétriques, habilement positionnés en alternance, et composés chacun d'un mur en maçonnerie visible en façade, d'une colonne et d'une poutre en béton, permettent de positionner les mobiliers séparant les chambres. Le restaurant est composé selon la même rigueur et se prolonge par un balcon. Une deuxième phase d'extension, reportée aux années 1980, consiste à démolir le home d'origine pour déployer autour de la cour trente-huit lits supplémentaires. En total contre-pied de la phase 1, les chambres, présentant des dimensions, orientations et fenêtres variées, sont organisées en grappe autour de nœuds de circulation encourageant les interactions entre résidents. La volumétrie fractionnée du bâtiment, visant à reproduire l'échelle domestique, témoigne cette fois d'une attitude résolument postmoderne.

Élodie Degrave

Sources
Archives Mercier-Ledoux.