Architecture et Harmonie

Bureaux

2006 - 2007 2006 - 2007
Réalisé

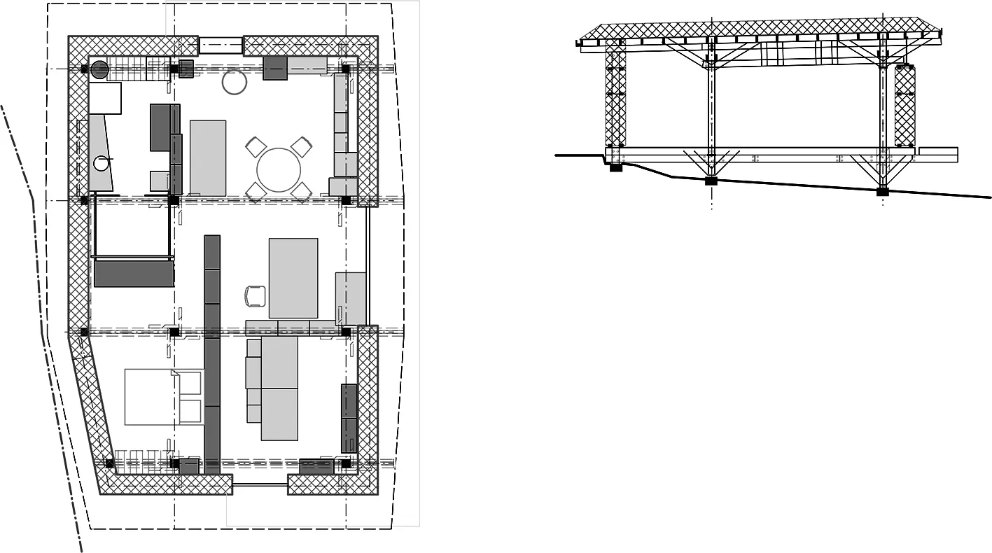
Déposée sur pilotis en bordure d'un bois, cette autoconstruction expérimentale abrite le bureau de l'architecte Staffe, qui utilise ici une technique d'isolation à base de ballots de paille, encore peu connue en Belgique. Réalisé selon les principes de la construction sèche, le bâtiment est constitué d'une ossature en mélèze reposant sur des fondations en gravier damé. La façade en paille, protégée des intempéries par un débordement du toit, forme une masse isolante. Tassés en quinconce entre deux échelles de bois horizontales, les ballots sont couverts d'un enduit extérieur (chaux) et intérieur (argile) posé directement sur la paille lors de stages ouverts au public. Assumant son identité hétéroclite, l'édifice se pose en exemple en termes d'écologie et d'économie de moyens.

Élodie Degrave

Sources
Archives de ARHA (Architecture et Harmonie).