Crématorium des Blancs Arbres

Crématoriums

2010 2010
Réalisé

Dans une perspective transfrontalière et transrégionale (projet Interrreg Iva « Alpha et Oméga »), cinq crématoriums (français, wallons et flamands) se sont associés afin d'offrir un service de qualité « tentant d'estomper l'impact des frontières nationales ». 

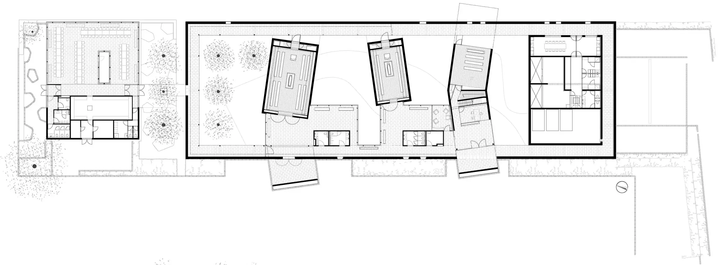
Inauguré en janvier 2010, le centre cinéraire des Blancs Arbres, pôle picard de cette collaboration, est établi au cœur d'un terrain de 4,29 ha, comprenant un crématorium, un parking et un cimetière cinéraire réparti en six modules. L'édifice inscrit ses fonctions au cœur d'un jardin de forme rectangulaire délimité par un mur d'enceinte et un péristyle. 

Élaboré en volumes blancs, le crématorium intègre sa discrète silhouette basse dans le paysage, et seuls les bureaux et la salle de réunion sont localisés au premier étage. Trois salles distinctes, disposées en ordre lâche, communiquant entre elles en surface (public) et en sous-sol (technique), sont reliées au hall d'entrée. Marqué par l'« intimisation » des pratiques cinéraires (circulations évitant le croisement des familles entre elles, répartition espace familial/espace technique, etc.), le bâtiment offre des espaces semi-ouverts empêchant la visibilité en perspective. Ce concept directeur décline la symbolique de la transition et du passage, tant physique que psychologique, depuis et vers le monde extérieur. 

Le site complet s'inscrit dans un environnement visant à ce que « la vue se perde dans les collines voisines ».

Xavier Deflorence

Sources
Les Blancs Arbres, Inauguration – 22 janvier 2010 : dossier de presse, Tournai : IDETA.