Maison Dobbelaere

Habitation unifamiliale

2006 - 2008 2006 - 2008
Réalisé

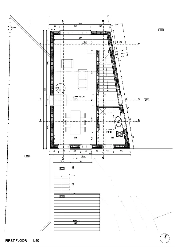
Cette habitation familiale allie discrétion de la volumétrie et praticité d'usage. Elle s'apparente à un objet géométrique pur, au sein des pâturages. La localisation de l'entrée sous le niveau de la route contribue au caractère mystérieux du lieu. Trois plateaux s'y superposent, chacun lié à une fonction particulière. Le rez-de-chaussée est dédié à la pratique professionnelle de la propriétaire, le premier étage aux pièces de vie, et le second aux pièces de nuit. Un mur, le seul élément fixe au sein de l'habitat, traverse les planchers de bas en haut. Un plan libre est adopté pour les niveaux supérieurs : des cloisons mobiles permettent d'y varier la modulation de l'espace. L'ouverture vers le paysage environnant est travaillée par le biais de grands cadrages. Le système constructif correspond à une ossature bois, revêtue d'un Placo de teinte claire à l'intérieur et d'ardoises foncées à l'extérieur.

Sources
Architectuur in Vlaanderen : jaarboek 2008-2009, Antwerpen : VAi, 2010.