La Fabrique de théâtre
Autres bâtiments universitaires / hautes écoles Théâtres / Opéra Centre d'exposition
1939
1939
Réalisé
Entre la seconde moitié du XVIIIe siècle et la première moitié du XIXe, la commune de Frameries a connu une activité économique importante, principalement liée à l'exploitation du charbon. La construction de l'école répond aux besoins de formation du secteur de l'industrie de la chaussure, activité florissante dans la région. Le bâtiment est constitué d'une grande aile principale à laquelle se greffe, à l'extrémité ouest, une rotonde rappelant la proue d'un navire.
Dans le volume principal, un long couloir distribue uniformément des classes ouvertes en façade arrière par des baies vitrées de grande dimension. La rotonde abrite une salle d'une hauteur importante sous plafond. La réalisation d'une tour, à l'endroit même où s'articulent les axes de circulation, rompt avec l'horizontalité du volume principal et évoque formellement, ici encore, un bateau.
S'inscrivant parmi les nombreux programmes publics de la région adoptant l'écriture moderniste, l'école peut, par ailleurs, être ici qualifiée d'architecture « paquebot », thème souvent décliné dans les différentes réalisations de l'architecte tournaisien.
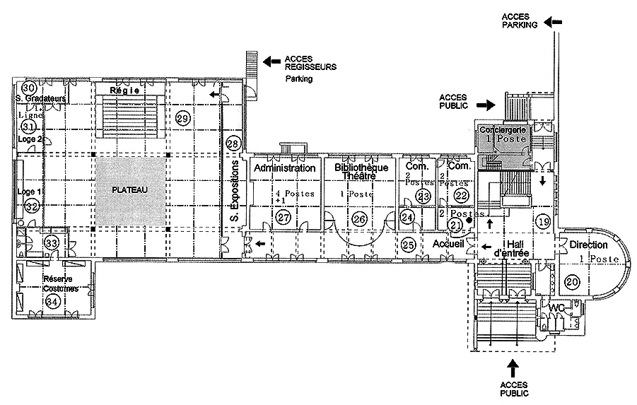
Le bâtiment abrite aujourd'hui, à l'initiative de la Province de Hainaut, la Fabrique de théâtre : lieu de rencontre, d'exposition, de réflexion et d'information sur les arts vivants, en particulier sur les arts de la scène. Elle forme également des régisseurs de théâtre et des médiateurs scène-salle, et dispose d'un lieu d'hébergement.
Étienne Godimus
| Sources |
|---|
| La Fabrique de Théâtre, en ligne https://www.lafabrique.be/, consulté le 01/03/2015. |
| Colfontaine, Dour, Frameries, Honnelles et Quévy, Wavre, 2006, p.193. |