Atelier rural

Bureaux Pépinières d'entreprises

2003 - 2007 2003 - 2007
Réalisé

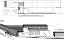
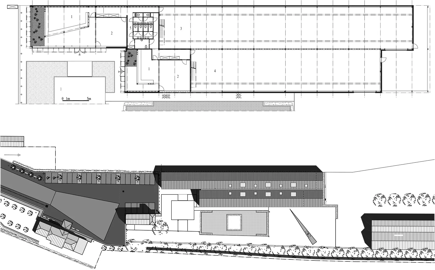
L'Atelier rural est destiné aux entreprises naissantes au sein de l'agglomération, un projet subsidié par le Développement rural de Flobecq pour faciliter l'ancrage économique. La construction vient s'implanter sur un ancien site vicinal, en retrait du bâti existant pour dégager une perspective et refermer la place de la Station. Le projet structure l'espace en proposant un seul axe de distribution dans la continuité de l'ancienne forge restaurée à l'entrée du site et met en évidence les anciens hangars à l'arrière, aujourd'hui occupés par un entrepôt communal. L'Atelier rural est conçu pour recevoir une ou deux entreprises. Il présente deux volumes décalés dans la longueur qui créent un dégagement pour la zone d'accueil partagée. Les espaces intérieurs de 8,50 m sous faîte peuvent être agencés selon diverses configurations (bureaux, ateliers, lieux de stockage) : trémies d'escalier et zone sanitaire sont intelligemment placées pour favoriser la flexibilité. Le système constructif est simple : des poutres en lamellé-collé reposent sur des piliers à intervalles réguliers, tandis que le tirant inférieur de la charpente en acier galvanisé vient se fixer directement sur les poutres. Les façades sud traitées avec un brise-soleil sont supportées par une équerre clipsée dans l'âme porteuse du mur-rideau. Le grand soin apporté aux détails techniques et l'expression architecturale (toiture à deux versants, parements de mélèze d'une épaisseur importante rappelant des billes de chemin de fer) renforcent l'identité de ce lieu qui a toujours été un pôle d'activité.

Cécile Vandernoot

Sources
«Nostalgie ferroviaire» dans Carnet d'architecture bois, n° 3, 2010, p.122-125.
In Situ, en ligne http://www.insitu-navez.be/, consulté le 22/09/2017.