Ateliers Poncelet

Bureaux Usines

2010 - 2013 2010 - 2013
Réalisé

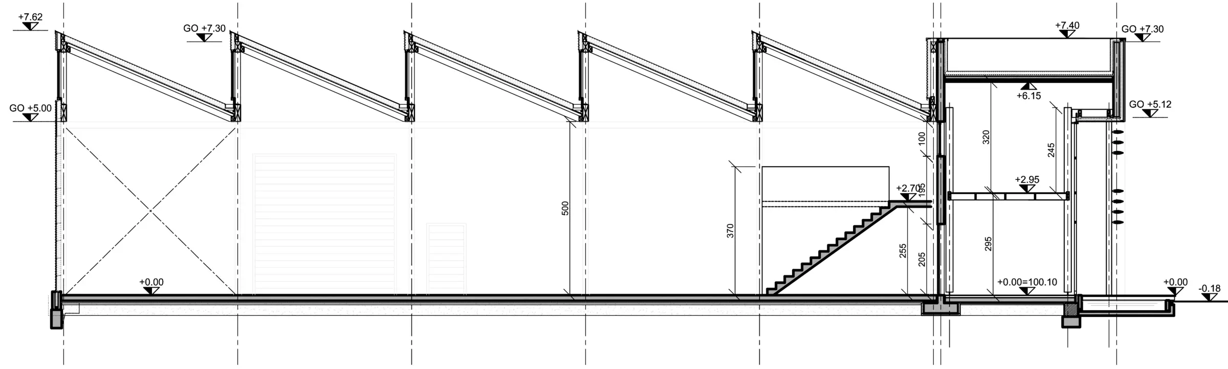
Le chantier naval Poncelet, héritier d'une longue tradition commencée dans les années 1930, construit désormais des bateaux en bois selon les techniques les plus modernes. 

Le nouveau bâtiment se devait d'être à l'image de la production, c'est pourquoi l'atelier d'architecture a choisi de traduire technique et tradition par l'usage de toitures industrielles en shed, orientées au nord, garantes d'un éclairage constant, mais encore dans l'utilisation du bois, aussi bien pour la charpente en lamellé-collé de l'atelier que pour le bardage en cèdre des bureaux. 

La modernité s'exprime dans la conception des structures : des poutres en treillis, dégageant des portées de 25 m, mais aussi dans les systèmes techniques mis en œuvre (sol chauffant, cogénération) adaptés aux contraintes de travail de l'atelier.

Marjorie Lefevre et Maurizio Cohen

Sources
Archives de A+11.