Maison Cuypers
Habitation unifamiliale Cabinets médicaux / dentisterie
1975 - 1976
1975 - 1976
Réalisé
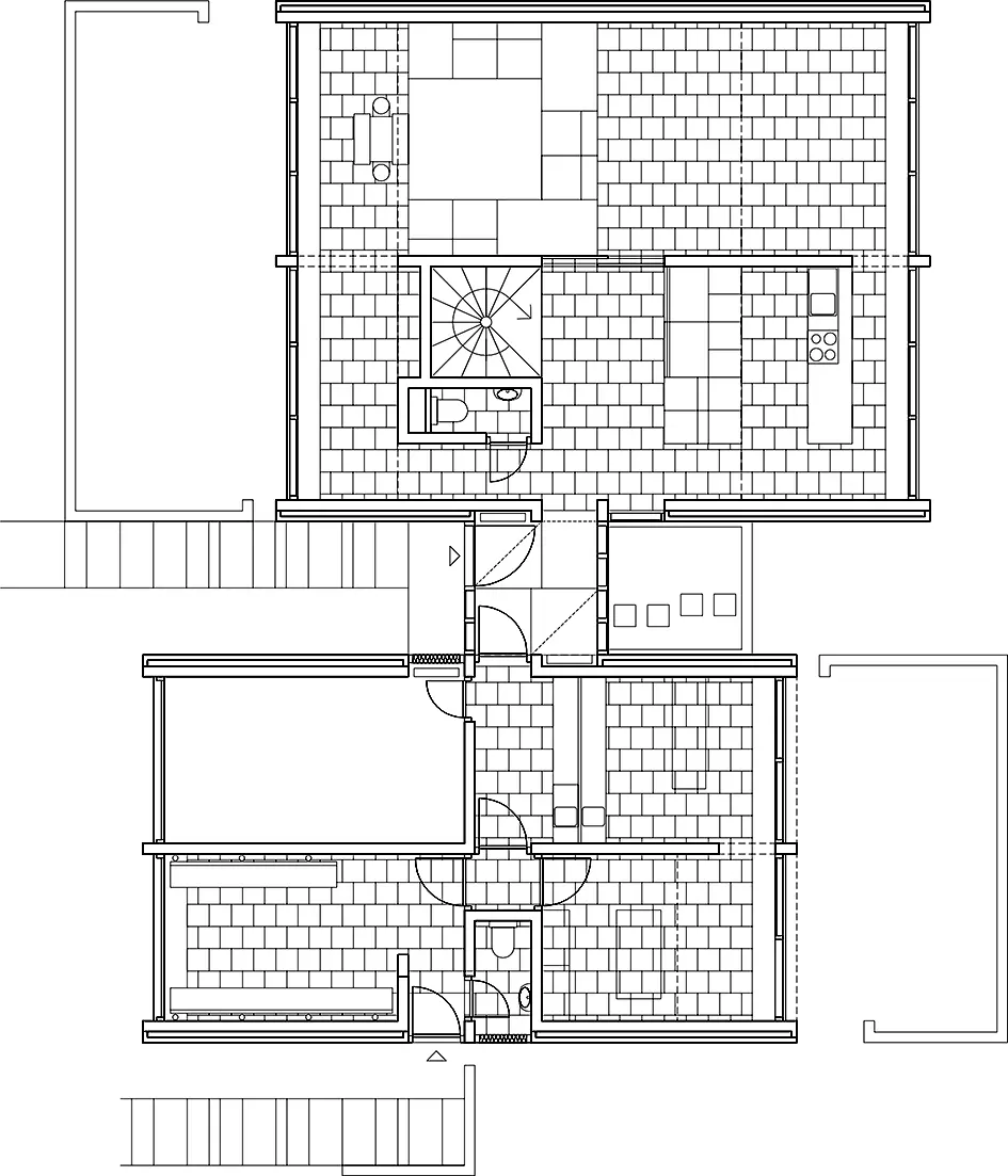
Cette réalisation inaugure un cycle de six habitations en blocs de béton apparents dont le point d'orgue sera la maison personnelle de l'architecte. D'emblée, la maîtrise est complète. Ce programme bipartite s'expose sous la forme de deux maisons jumelles reliées par un intervalle vitré ; à droite, le travail, à gauche, la famille, avec son entrée dans l'axe médian de l'interface de la construction.
Les abords proposent un dispositif en miroir : côté rue, un patio pour fermer la zone de vie et une baie vitrée pour signaler la salle d'attente ; côté jardin, l'inverse. La composition, d'une simplicité apparente, nuance et hiérarchise les zones de vie. à partir d'une rationalité constructive et technique sans faille, une spatialité, à la fois compartimentée et fusionnée, prend corps.
Structures, percements, mobiliers intégrés, hauteurs variables, coin de feu en contrepoint du patio, etc. : tous ces éléments participent d'une continuité subtile qui fonde un lieu libéré des contingences.
Georges-Éric Lantair
| Sources |
|---|
| «Prix et concours d'architecture» dans A+, n° 75, décembre-janvier, 1982, p.12-13. |