Maison Marichal

Habitation unifamiliale

2002 - 2003 2002 - 2003 2002 - 2003 2002 - 2003
Réalisé

Un couple de retraités a choisi de laisser derrière lui sa maison pleine de souvenirs pour s'en construire une nouvelle, conforme à son mode de vie et à ses besoins. 

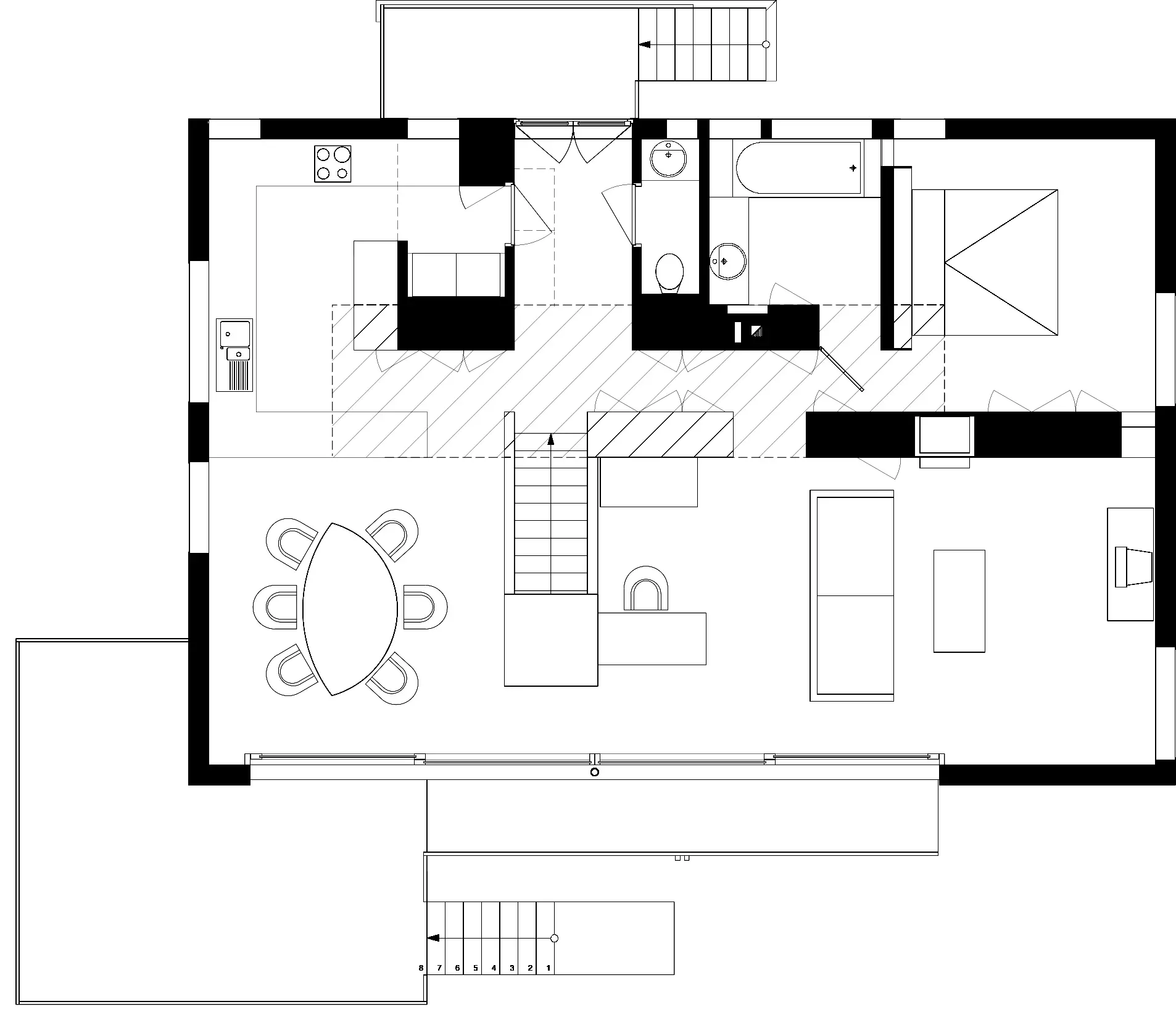
Les architectes David et Leblan ont conçu un logement sur mesure, construit autour d'un mobilier unique et intégré. L'ossature bois est enveloppée d'une peau d'ardoises qui favorise son implantation dans l'environnement en pierre du village de Xhoris. 

La maison est semi-enterrée pour en diminuer l'impact sur le paysage. Les pièces de vie s'installent au niveau supérieur pour que les habitants profitent d'un maximum de lumière naturelle.

Anne-Catherine De Bast

Sources
Carnet de route. L'architecture en bois : Région wallonne et alentours tome 7.