Hall des sports de Farciennes
Centres sportifs / salles de sport / gymnases
2008 - 2012
2008 - 2012
Réalisé
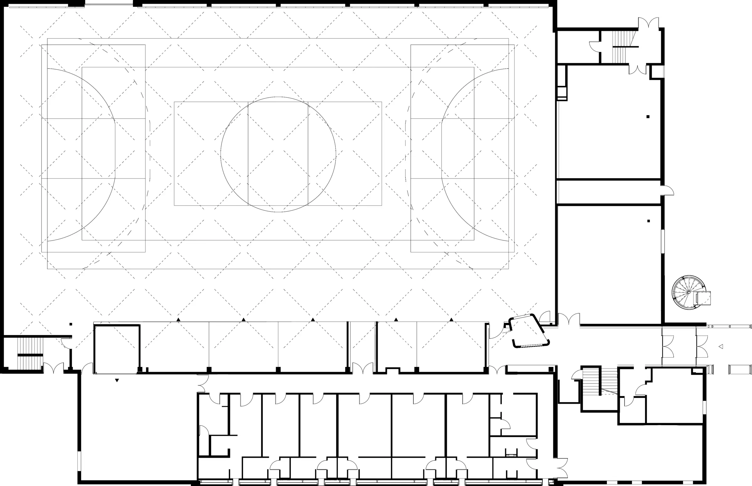
La transformation de ce bâtiment datant des années 1980 permet de le repenser aussi bien dans son organisation interne que dans son image externe. L'idée maîtresse est de rapporter les rénovations intérieures vers l'espace public, de façon à faire de ce programme un projet qui dialogue avec son environnement.
Dans cet objectif, une fresque – référence au street art pratiqué par les jeunes Farciennois – est peinte sur les façades. La deuxième intervention se penche sur l'entrée du bâtiment et crée un dispositif architectural qui déborde de quelques mètres sur l'extérieur et crée un signal et un appel pour le public. La réorganisation des espaces intérieurs marque la séparation des visiteurs et des sportifs. La cafétéria prend désormais place à l'étage, permettant d'avoir une vue plongeante sur les terrains.
Enfin, la grande salle est mise en conformité pour accueillir des équipes de niveau national, tandis que les couleurs créent un espace vivant et lumineux, ce que le dessin de l'éclairage, une gigantesque trame orthogonale, renforce par sa dynamique abstraite.
Victoire Chancel et Maurizio Cohen
| Sources |
|---|
| Archives Reservoir A. |