Maison Wuidar
Jalon XX

Habitation unifamiliale Ateliers d'artistes

1974 - 1976 1974 - 1976
Réalisé

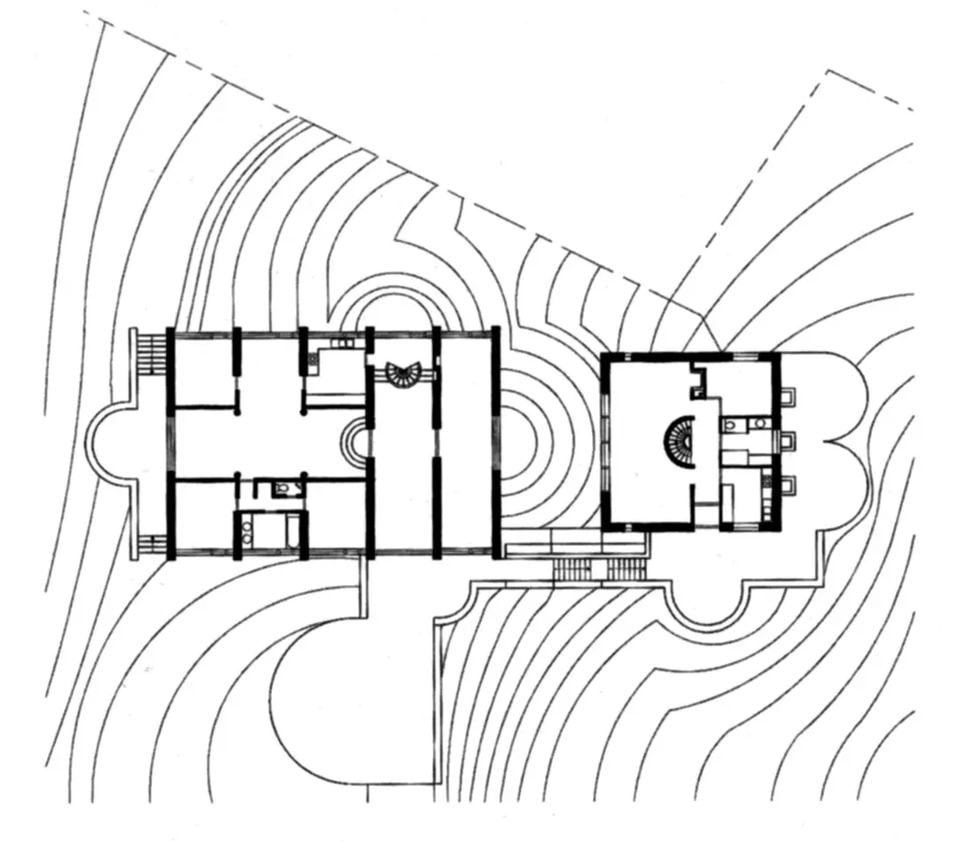
Charles Vandenhove réalise, pour le peintre Léon Wuidar, une maison aux lignes horizontales dont les deux longues façades sont formées de travées largement vitrées. La structure est en béton apparent, les murs sont en parpaing, le toit en bâtière, aujourd'hui recouvert de zinc, était, à l'origine, en tôles d'asbeste-ciment. 

Dix-sept ans plus tard, l'artiste sollicite un agrandissement. L'architecte propose une construction indépendante : un cube de béton gris clair, arborant une puissante façade aux ouvertures discrètes et coiffé d'une toiture plate. 

Les deux réalisations s'opposent formellement tout en se renforçant mutuellement : la première s'étire horizontalement et légèrement grâce à la transparence de ses façades, la seconde, qui s'apparente à une tour, s'impose par sa masse, son volume épuré et ses murs vigoureux. 

Isabelle Graulich

Sources
Bekaert Geert, Charles Vandenhove, 1985-1995, Rotterdam, Nai publishers, 1994, p.175-177.
Dercon Chris & Verschaffel Bart & Bekaert Geert, Charles Vandenhove: art and architecture, Tournai, La Renaissance du Livre, 1998, p.39; 225-229.
Balau Raymond, «Charles Vandenhove : l'autre maison Wuidar» dans A+, n° 149, décembre-janvier, 1997-1998, p.40-49.