Résidence du Quartier fleuri

Homes / Maisons de retraite

2007 - 2017 2007 - 2017
Réalisé

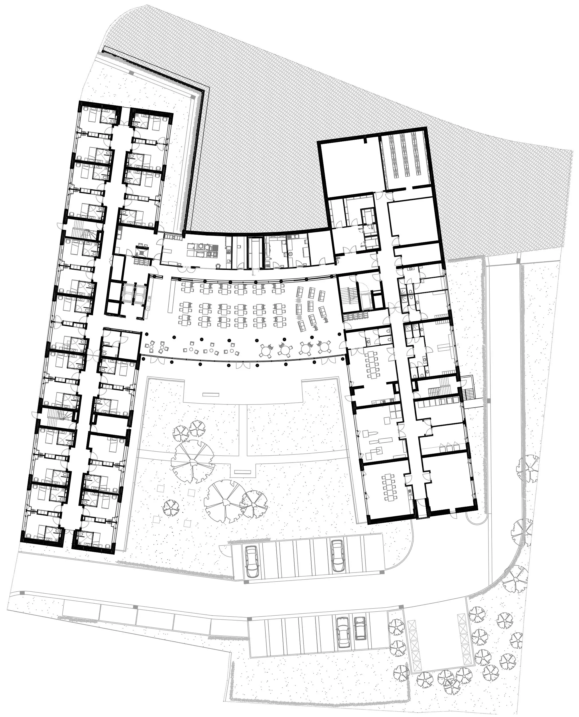
L'objectif principal de ce projet est d'offrir un lieu de résidence à échelle humaine, et ce, malgré la taille du programme proposé (72 chambres et 31 appartements). Pour ce faire, le bâtiment s'inscrit au cœur du village d'Erquelinnes, sur un vaste terrain en pente.  L'implantation des différents volumes et le traitement des larges baies permettent de bénéficier de nombreuses vues sur l'environnement extérieur, tout en préservant l'intimité des résidents. 

Intégré dans un contexte d'habitations pavillonnaires et mitoyennes, le projet comprend deux volumes parallélépipédiques en briques rouges de trois et quatre niveaux reprenant les espaces privés.  Pour accroître le sentiment d'appartenance et de bien-être, une réflexion est portée sur les choix du mobilier, de matériaux et de couleurs qui se veulent chaleureux et lumineux. 

L'intégration de réinterprétations florales, clin d'œil au lieu-dit, permet l'identification des différents niveaux. Ces deux bâtiments sont reliés par un volume en verre de plus petit gabarit abritant l'espace collectif, favorisant une continuité avec l'extérieur, tant par le traitement des ouvertures, de la mezzanine et de l'espace en double hauteur que par des matériaux bruts et naturels.

Joe Calmes et Isabelle de Smet