Annexe de l'Athénée Adolphe Sax
Jalon XX
Ecoles maternelles Ecoles primaires
1982 - 1982
1982 - 1982
Réalisé
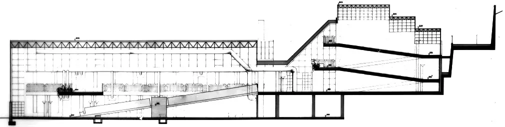
Une parcelle étroite encastrée dans un pied de versant, aux mitoyennetés fermées, a dicté le parti vital de l'école : un volume monolithique ouvert en son axe par une généreuse verrière qui abrite une rue intérieure lumineuse.
Une longue rampe y distribue deux niveaux de classes primaires ouvertes sur des coursives. À l'about du dispositif linéaire, un plateau vitré forme le foyer de l'école, appuyé contre un volume qui fait contrefort et accueille les classes gardiennes étagées dans la colline verdoyante, distribuées, elles aussi, par une double rampe sous verrière.
L'intérieur en blocs de béton apparents selon le procédé Griptell développé par l'architecte et la firme Bloc-Béton de Malonne , la grande verrière en structure-treillis et les gaines de ventilation créent une identité forte à l'espace collectif de l'école. Plus tard, l'école obtiendra l'autorisation d'ouvrir quelques baies dans les murs mitoyens.
Aloys Beguin
| Sources |
|---|
| Moureau Eugène, Système Griptell- BlocBeton Malonne: notes pratiques et techniques sur la maçonnerie apparente, Liège, Édition AUSE, s.d. |
| Archives Eugène Moureau.. |