Maison Seghin

Habitation unifamiliale

1964 - 1965 1964 - 1965
Réalisé

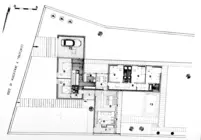
En retrait de la rue, la maison à toiture plate se développe de plain-pied avec, comme principe initial, une ouverture maximale vers le grand jardin environnant. Toutes les pièces de vie collective sont d'ailleurs percées de généreuses baies vitrées aux châssis en acajou. Le salon-salle à manger, orienté à l'ouest, s'inscrit dans une distribution en S avec comme rotule le hall d'entrée et, dans le second bras, les chambres pour les adultes et le garage. L'aile des chambres d'enfants au sud perturbe ce dessin en faisant un angle avec le living, formant ainsi une cour semi-ouverte dans laquelle se trouve une pièce d'eau qui appelle vers le parc. Les briques de la maison sont issues des décombres de l'ancien logement du directeur d'usine implanté auparavant au milieu de la propriété.

Irène Lund

Sources
«Habitation Seghin à Courcelles» dans La Maison, n°8, août, 1966, p.240.