Maison Dejardin-Hendricé

Habitation unifamiliale

2001 - 2004 2001 - 2004
Réalisé

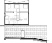
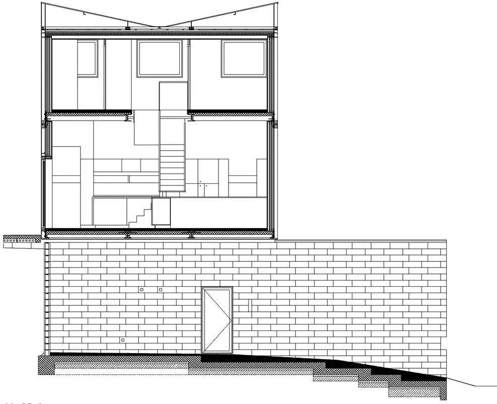
Aboutissement d'une réflexion menée au départ d'un budget serré, cette petite maison unifamiliale (135 m²) est réalisée complètement en acier Corten, posée sur trois murs porteurs en maçonnerie et encastrés dans la déclivité du terrain (4 m), pour accueillir le garage et les annexes. 

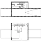
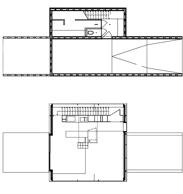
Le volume métallique déborde légèrement de son socle pour affirmer son caractère plastique et autonome. La conception se base sur la technique de coques de bateau et a pu être finalisée grâce au savoir-faire de l'entreprise de chaudronnerie industrielle du père du maître d'ouvrage, qui a assuré la préfabrication de tous les éléments et le montage sur site. Le volume final est un cube de 7,50 m de côté sur deux niveaux, reliés à l'intérieur par un escalier métallique suspendu qui allège la compacité de l'ensemble. 

Le processus d'étude a duré trente mois, impliquant un grand nombre d'intervenants – dont un partenariat avec de grandes entreprises industrielles pour déterminer les détails d'assemblage et de finition – et la conception d'un prototype de 3 x 3 m pour tester les solutions. La construction a été réalisée en atelier et transportée sur site en quatre parties, calculées sur les limites du gabarit routier maximal. 

Le montage et les soudures des tôles ont été réalisés, le 12 février 2004, en sept heures. Chaque élément joue un rôle essentiel dans la rigidité et la cohérence constructive de l'ouvrage. Au début, la rapidité de son installation et le caractère novateur de la maison ont reçu un accueil controversé du voisinage : une réaction qui sera, dès le lendemain du montage, à l'origine de la création des éditions Fourre-Tout au sein de l'atelier d'architecture, avec la publication d'un cube (5 x 5 cm) de deux cent septante pages sur le sujet, bagué dans un capot en acier mince. Avec le temps, les habitants ont accepté la présence de ce volume étonnant, dont les teintes se fondent avec les couleurs de l'environnement. 

Maurizio Cohen

Sources
Joly Benoit, «Un cube d'acier en Belgique» dans Architectures à vivre, n° 35, avril, 2007, p.126-129.
Hespel Christophe, «Maison individuelle» dans AMC, n° H-S Acier, juillet, 2007, p.58-61.
Cohen Maurizio, «Steel House, Comblain-au-Pont» dans A10, n° 2, mars-avril, 2005, p.36-39.