Habitations groupées SNPPT
Jalon XX

Logement public

1963 - 1963 1963 - 1963
Réalisé

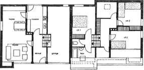
Cet ensemble d'une trentaine de maisons jumelées constitue, pour Jean Cosse, sa première recherche sur le thème de l'habitat groupé. Sur la base des normes édictées par la Société nationale de la petite propriété terrienne, les logements, déclinés en deux types, offrent cependant une souplesse due à l'exploitation de la déclivité du terrain. Ainsi, un déboîtement au sol et en toiture a permis une organisation des logements en demi-niveaux dans laquelle la chambre principale et les sanitaires s'appuient sur le garage en demi-sous-sol. La toiture en bâtière, entièrement occupée par les chambres, s'avance et se décroche suivant les cas, mais toujours selon un rythme qui épouse naturellement la pente du terrain. L'équilibre des formes et des fonctions et le jeu rigoureux des pleins et des vides annoncent l'esthétique que Jean Cosse développera dans ses réalisations futures. 
 

Jean-Paul Verleyen

Sources
Cosse Jean & Debuyst Frédéric, Des maisons pour vivre, Bruxelles, Éditions art vie esprit, 1975, p.28-31.