Maison Berhaut-Streel
Jalon XX

Habitation unifamiliale

1979 - 1980 1979 - 1980
Réalisé

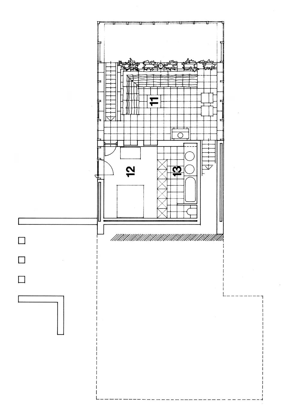
Le bâtiment s'implante en surplomb de la vallée de l'Ourthe, dans une forêt en forte déclivité. Ce site exceptionnel conduit tout le projet. La construction s'arrime littéralement à l'éperon rocheux affleurant et déroule le programme suivant quatre plateaux en lien direct avec le sol. 

Les zones de vie commune se déploient dans la nature environnante suivant une succession de terrasses en gradins, bien à l'abri derrière des parois vitrées et sous le couvert d'une toiture monopente. Les services et les fonctions privatives s'articulent selon une hiérarchie raffinée  sous les terrasses elles-mêmes. Ce dispositif donne à voir un espace unique, continu et fluide : de jour, une pergola,  une cabane dans les bois ; de nuit, une grotte toute en reflets. 

Les abords –  escalier d'accès, terrasse-cuisine, murets – accompagnent discrètement le contexte végétal. Le parallélépipède du garage-bureau est la balise qui accueille le visiteur et ancre le projet à la pente. Les escaliers – les seules circulations, car il n'y a pas de couloirs –, les locaux, les rangements : tout s'adapte à l'usage, à la vie dans une structure rigoureusement modulée sur le format des blocs en béton. 

Structure déterminante et figée qui offre une flexibilité singulière pour réaliser un espace à la fois contracté et dilaté. Les matériaux et leur mise en œuvre subtile révèlent un mode particulier d'habiter. Béton, bois, verre, pierre calcaire blanche : tous exposent leur texture telle quelle et génèrent un lieu qui allie bon sens, pragmatisme et une formidable charge poétique. 

Georges-Éric Lantair

Sources
Berhaut-Streel John, «Histoire simple d'une démarche architecturale au travers de cinq maisons individuelles» dans Architecture Belgium, mars-avril, 1982, p.20-21.
«Prix d'architecture ex aequo» dans A+, n° 75, mars-avril, 1982, p.16.