Cité de Beaufraipont

Logement public

1937 - 1938 1937 - 1938
Réalisé

Constituée en 1935, la Société nationale de la petite propriété terrienne sert de support aux initiatives locales visant l'amélioration des conditions de logement à la campagne, tout en offrant aux habitants la possibilité de jouir d'un lopin de terre destiné à être cultivé. Située au lieu dit Beaufraipont à Mehagne, la cité que projette la société Terre et foyer se trouve idéalement située à proximité de la route de Beaufays et profite d'une vue panoramique sur la vallée de l'Ourthe. 

Le Groupe L'Équerre imagine d'abord un vaste complexe constitué de deux immeubles comptant chacun huit étages. Construits en série, les appartements sont accessibles par un couloir à l'air libre orienté au nord, tandis que les pièces de vie avec terrasse s'ouvrent vers le sud. Entre les deux immeubles, les architectes disposent une plaine de jeux et une grande terrasse publique, réservant sur le pourtour septante-cinq petits terrains cultivables pour les habitants. 

Le système d'immeuble à appartements offre d'évidents avantages en termes d'économie : emprise au sol réduite, centralisation des services et des équipements… Le projet s'inspire des théories de Le Corbusier sur la Ville radieuse dont L'Équerre est le principal porte-voix en Wallonie. Faute de moyens, voire de volonté politique, le projet est abandonné pour une déclinaison moderniste de la cité-jardin. 

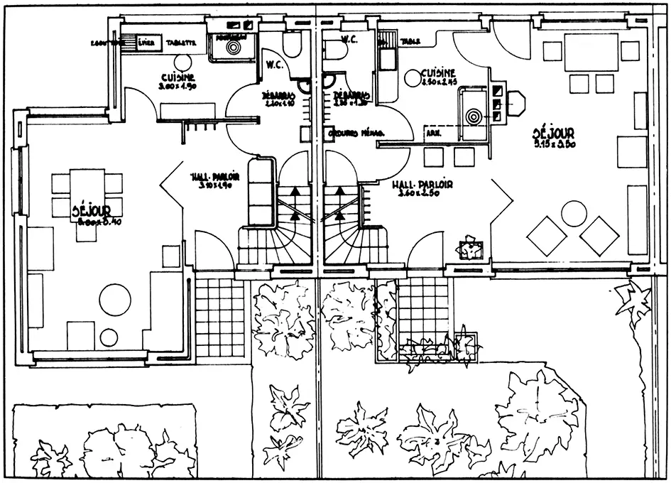
En tout, ce sont vingt logements qui sont ainsi construits en s'inspirant des théories de la Maison minimum. En vue de limiter les coûts de construction ainsi que l'entretien du ménage, les espaces sont réduits. L'équipement propose toutefois les derniers standards du confort, avec salle de bains et cuisine moderne. Sur le terrain en pente, les maisons comptent trois niveaux, dont un semi-enterré menant au jardin et au potager. 

Au niveau esthétique, on retrouve les caractéristiques de l'architecture moderniste du Groupe L'Équerre : absence de décoration, toiture plate, façades entièrement recouvertes d'enduit, volumes simples, etc.

Sébastien Charlier

Sources
Flouquet Pierre-Louis, «Un lotissement "social" par les architectes associés du groupe L'Équerre» dans Bâtir, n° 54, Bruxelles, mai, 1937, p.1188-1189.
Flouquet Pierre-Louis, «Pour un meilleur logis populaire» dans Bâtir, n° 66, Bruxelles, mai, 1938, p.216-219.
Crutzen N., «Etude concernant la petite propriété terrienne» dans L'Equerre, n° 3-4, Liège, mars-avril, 1937, p.10 à 13.