Casino de Chaudfontaine

Casinos Hôtels

1938 1938
Réalisé

à la fin des années 1930, les édiles de Chaudfontaine – cité thermale courue dès le XVIIIe siècle – se lancent dans la modernisation des infrastructures touristiques, dont celle du vieux kursaal datant des années 1860. 

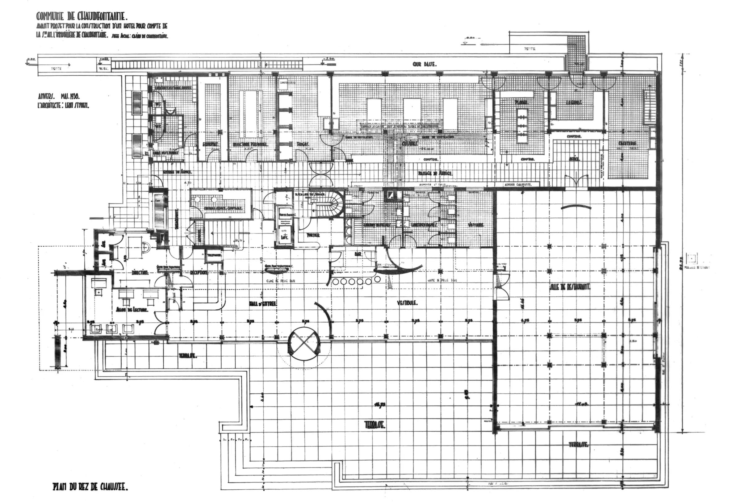
L'architecte anversois Léon Stynen, auteur des casinos de Knokke (1928) et de Blankenberge (1929-1931), est appelé à concevoir le nouveau complexe. Installé sur une longue parcelle située entre la gare et la Vesdre, le bâtiment compte un grand hall, une vaste salle de jeux, un restaurant, un bar, un dancing et divers locaux administratifs et techniques. De nombreuses peintures murales réalisées par Van Vlasselaer (disparues) égaient les espaces réservés au public. Stynen développe un langage qui manifeste un recul par rapport au modernisme radical. La façade principale est entièrement recouverte de dalles de schiste ardoisier, matériau naturel que l'architecte avait déjà exploité l'année précédente dans la villa Van Thillo à Ekeren (Anvers). Plus lyrique, la façade méridionale ondule en dialoguant avec la rivière située en contrebas. 

De l'autre côté de l'esplanade dessinée pour l'occasion, l'architecte édifie le Palace-Hôtel en reprenant la même combinaison de schiste ardoisier et de briques de parement claires, mais dans une composition plus élémentaire. Le bâtiment comptant trente-six chambres et six appartements est établi en parallèle avec le casino – de sorte que l'ensemble présentait à l'époque une grande cohérence architecturale. 

Les multiples transformations (remplacement des parements, suppression de l'auvent, etc.) ont largement effacé l'écriture architecturale initiale.

Sébastien Charlier

Sources
Flouquet Pierre-Louis, «Le Casino et le Palace-Hotel à Chaudfontaine» dans Bâtir, n° 81, Bruxelles, août, 1939, p.343-347.