Villa M.

Habitation unifamiliale

1996 - 1998 1996 - 1998
Réalisé

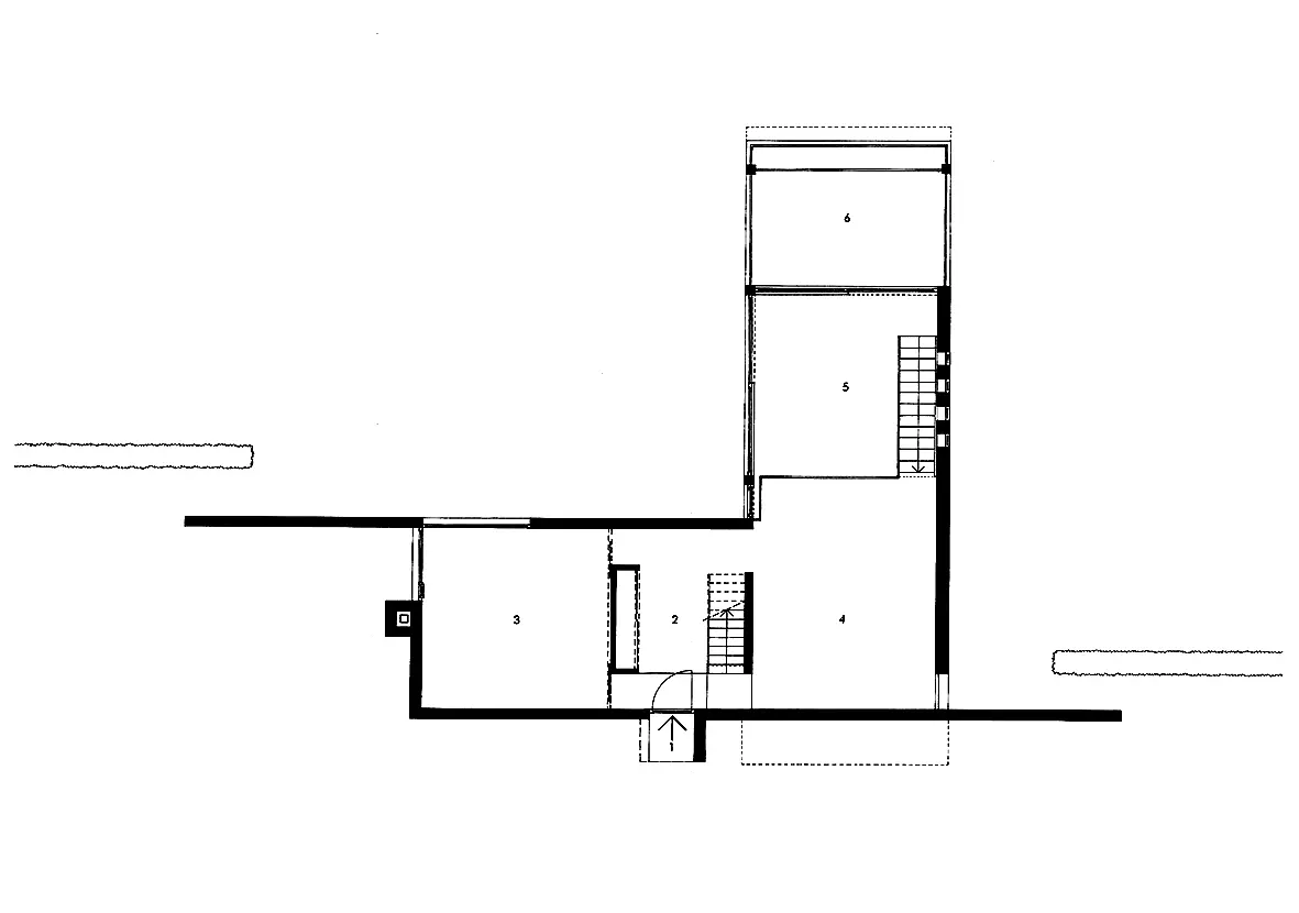
Les composantes de ce projet d'habitation sont nombreuses : la volonté du maître d'ouvrage d'avoir une grande maison à vivre malgré un budget restreint, la situation dans un quartier résidentiel classique et, surtout, un terrain très intéressant. À rue, ce dernier se compose d'une aire plane qui dévale à l'arrière dans le bois. Fidèle à son désir de créer un dialogue entre la construction et son environnement, l'architecte décide de jouer sur le contraste entre le quartier bien ordonné et la forêt, sauvage. 

En façade, le mur enduit en blanc crée une limite visuelle. C'est en le franchissant que l'on découvre progressivement le paysage. Le parcours intérieur s'organise dans des volumes perpendiculaires au mur d'entrée. Il mène au salon ouvert en mezzanine sur la salle à manger, traitée en double hauteur de plain-pied avec la terrasse. Cet ensemble est entièrement vitré, projetant les habitants vers le spectacle extérieur. Au-dessus, le volume des chambres est porté par des poteaux en afzelia et bardé de cèdre. Il offre ainsi une plus grande intimité, tout en s'intégrant idéalement au lieu. Les détails sont sobres, l'enveloppe s'efface au profit de longues perspectives et de la mise en scène de la nature environnante. 

De l'aveu de l'architecte, ce projet marqué par une plus grande liberté de composition constitue un tournant dans sa carrière.

Florence Mercier

Sources
Berkmans Anne-Catherine & Wajnblum Admon & Plissart Marie-Françoise, Bois & habitat : 10 ans d'architecture contemporaine en bois, Waterloo : Renaissance du Livre, 2009, p.138-145.
Knopes Liliane, Belgium new architecture 3, Bruxelles : Prisme éditions, 2005, p.156-159.
Saliez Frédéric, «La nature mise en scène.» dans A+, n° 168, février-mars, 2001, p.86-87.