Maison G.

Habitation unifamiliale

2003 - 2004 2003 - 2004 2003 - 2004
Réalisé

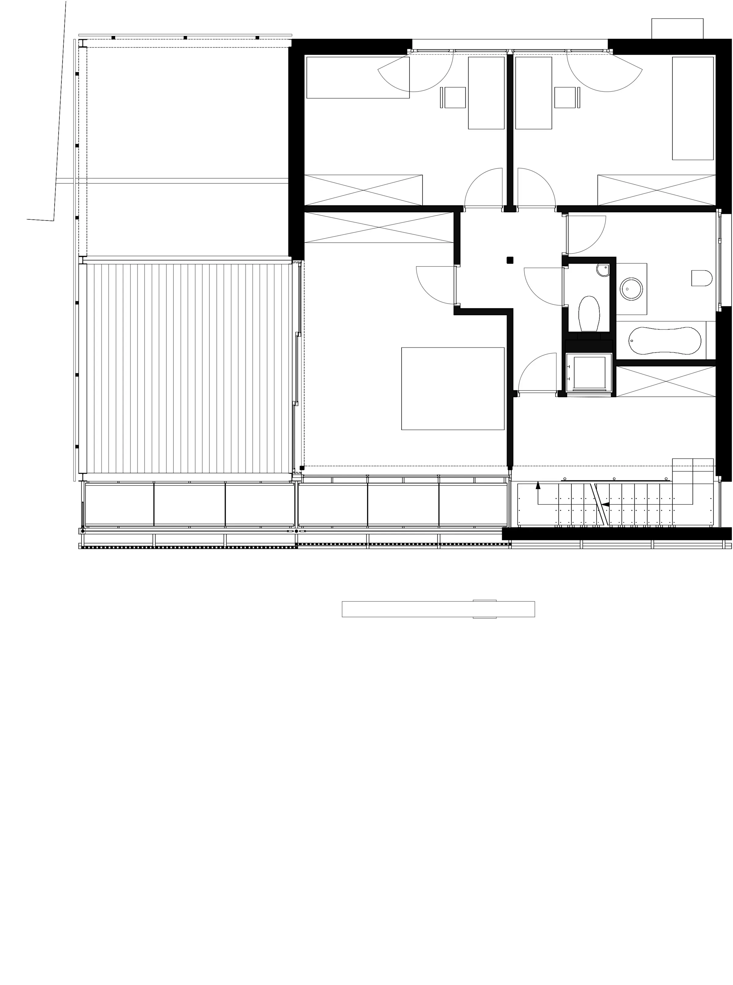
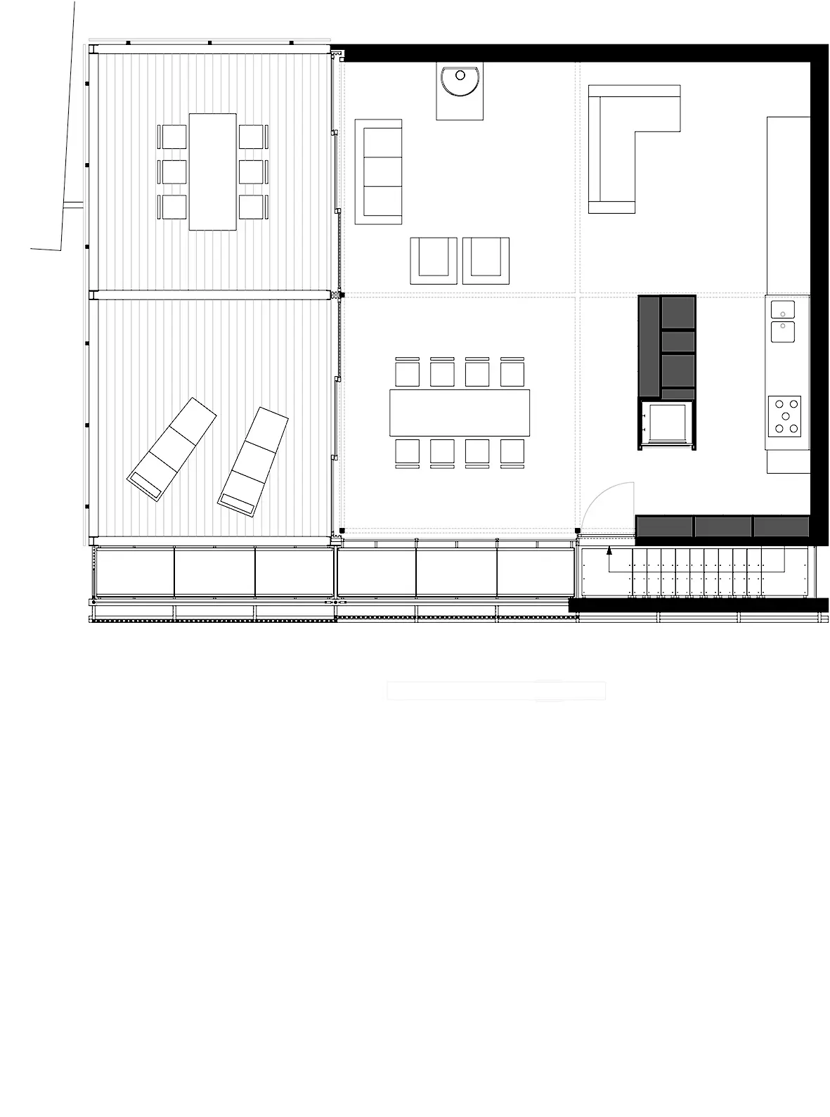
L'architecte Éric Grondal s'est basé sur un concept cher à Le Corbusier pour construire la maison de son oncle : le plan libre. Celui-ci, grand collectionneur de bandes dessinées, souhaitait une habitation polyvalente pouvant servir de lieu d'exposition, compacte et ne nécessitant pas d'entretien. 

Sur une parcelle exiguë, en intérieur d'îlot, l'architecte a imaginé une construction formant un carré parfait de 8 m de côté. Les plateaux sont équipés de parois amovibles et traversés par un poteau central et prolongent les espaces de vie par une terrasse. 

Aujourd'hui logement unifamilial, le bâtiment pourrait facilement être transformé en un ensemble de bureaux ou en trois studios. La façade est, entièrement vitrée, est habillée de claustras de bois coulissants afin de garantir l'intimité des occupants, tout en permettant une évolution esthétique. Le côté sud de la maison, tout aussi transparent, est protégé par un claustra fixe où s'épanouit une glycine. Les pièces à vivre s'implantent sous le toit par souci d'intimité, captant les vues et la lumière. 

Conformément aux souhaits du propriétaire, tout a été fait pour limiter l'entretien : le béton, l'acier galvanisé et le pin autoclavé ne nécessitent aucune attention spécifique. La maison se distingue également par ses grandes qualités énergétiques (compacité,  isolation et étanchéité à l'air).

Anne-Catherine De Bast

Sources
d'Architecture, n° 183, juin-juillet, 2009, p.82-85.
De Bast Anne-Catherine, «Caméléon passif» dans A+, n° 199, avril-mai, 2006, p.86-90.