Siège régional de Fabrimétal

Bureaux

1946 1946
Réalisé

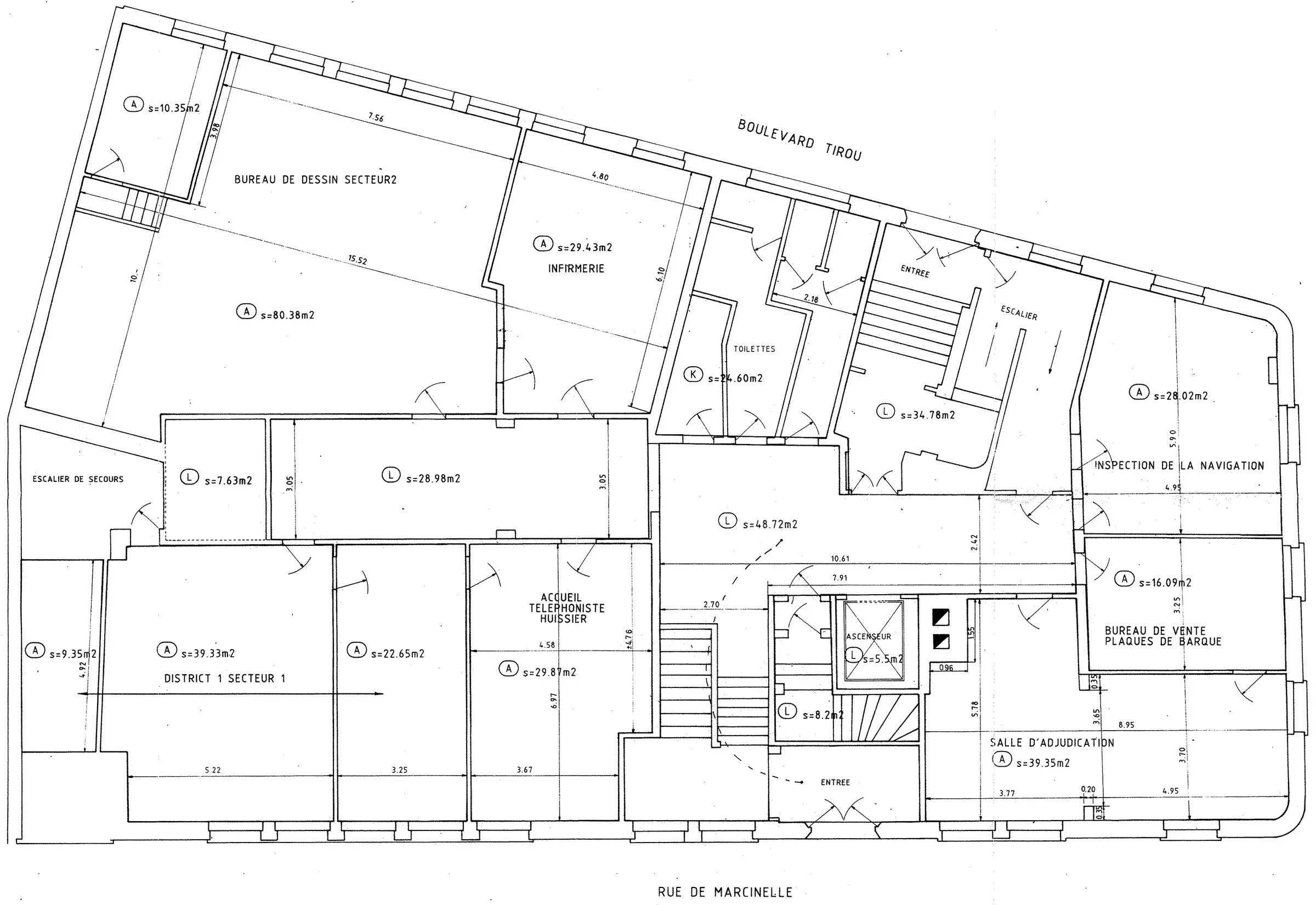
L'architecture monumentale et académique traduit l'importance que lui accorde le commanditaire. Aujourd'hui, le bâtiment abrite le siège de la Direction des voies hydrauliques de Charleroi (Service public de Wallonie). Sa disposition sur une parcelle trapézoïdale permet de concentrer au centre du bâtiment les locaux techniques ainsi qu'un espace de circulation desservant les bureaux et salles de réunion, orientés respectivement sur la rue de Marcinelle et sur le boulevard Tirou. 

Au croisement de ces deux artères, la façade d'angle s'aplanit et laisse profiter les espaces de larges baies vitrées donnant sur le canal. Les angles courbes de part et d'autre de cette façade exposent des sculptures en pierre contrastant avec le parement de briques qui habille l'entièreté du bâtiment. 

L'escalier jouxtant l'ascenseur central se dessine, quant à lui, en façade en s'insérant dans un volume proéminent et galbé.

Mélanie Ganino