Quai 10
Ateliers d'artistes Autres batiments culturels Cinémas
1963 - 1966
1963 - 1966
1963 - 1966
2009 - 2016
2009 - 2016
2009 - 2016
2009 - 2016
2009 - 2016
2009 - 2016
2009 - 2916
2009 - 2916
Réalisé
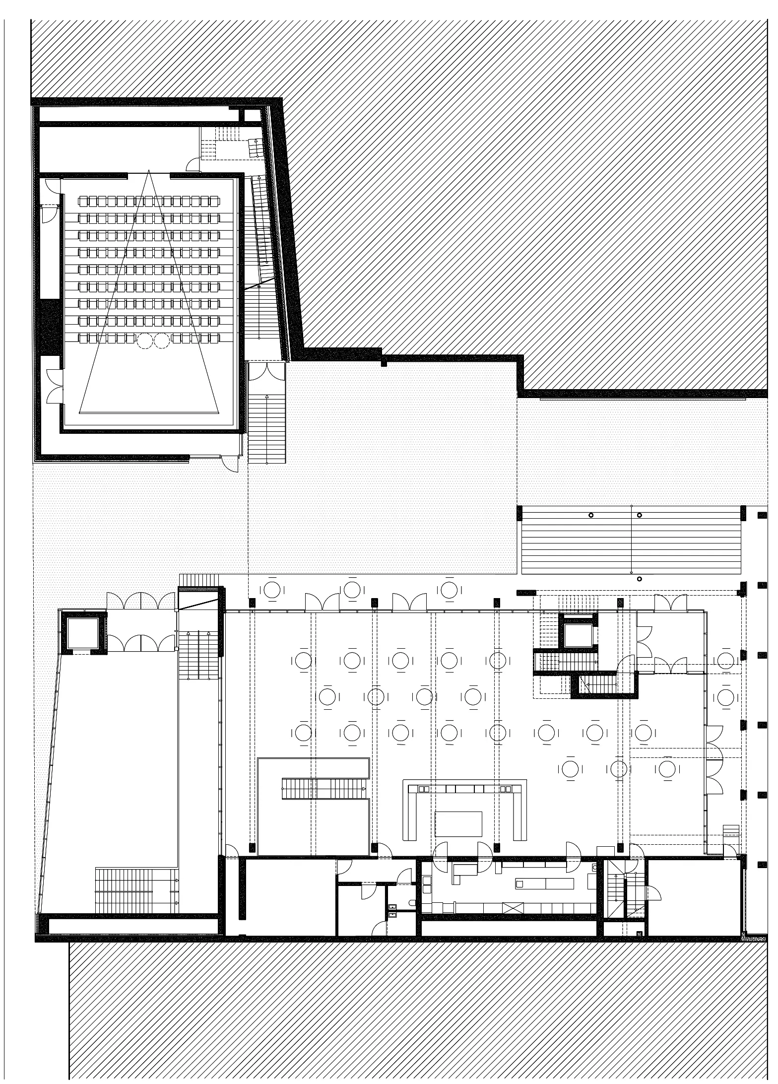
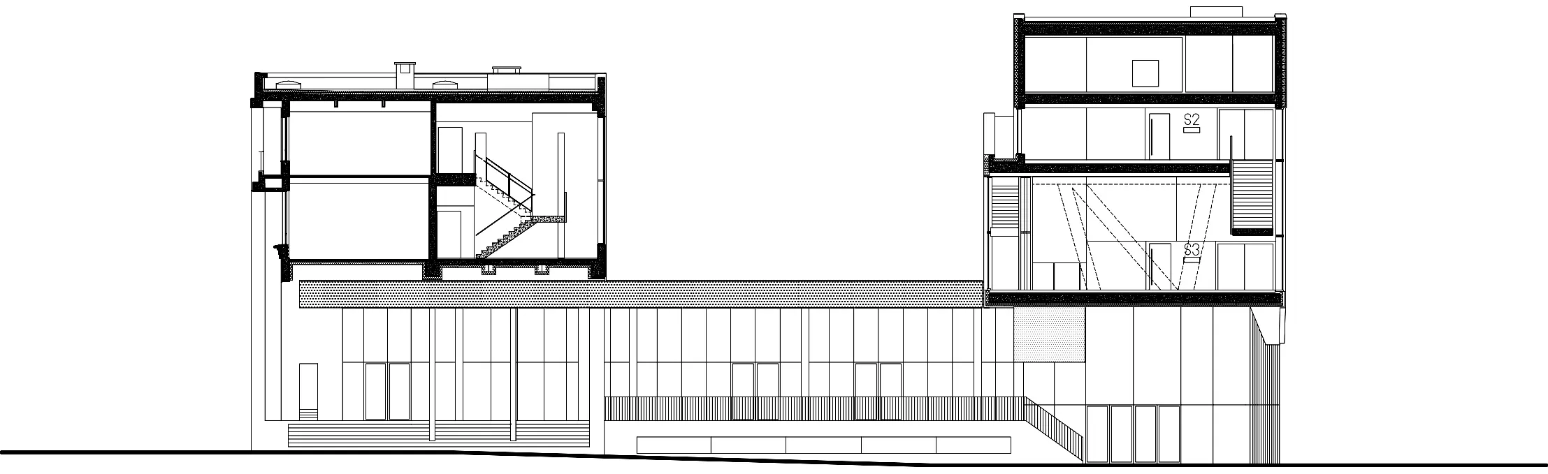
La reconversion de l'ancienne Banque Nationale de Belgique affiche la volonté de garder des salles de cinéma en ville, portée par l'opérateur Le Parc, en y combinant un pôle dédié aux jeux vidéo, tout en devenant un lieu de rencontre pour tous. Le rez-de-chaussée est totalement libre d'accès.
Le bâtiment existant côté quai est préservé et abrite, aux étages, des résidences et ateliers d'artistes. La vaste brasserie, le centre névralgique du projet, peut accueillir des événements et des concerts. Elle prend place le long d'une rue intérieure piétonne qui prolonge l'axe de la rue Puissant, de la Ville Basse jusqu'aux quais de la Sambre et la passerelle, nouvellement réaménagés.
Une construction neuve, côté rue Léopold, accueille quatre salles de cinéma et offre une façade en dialogue avec la ville. Les espaces de circulation entre les salles de projection sont vitrés pour créer une animation sur l'espace public en contrebas. Les salles de gaming et d'exposition dans les caves complètent la programmation du bâtiment.
Mélissandre De Negri et Maurizio Cohen
| Sources |
|---|
| Dars Sophie & Menon Carlo, V+ architecture documents on five projects, Bruxelles : Lannoo ; Bozar ; A+, 2015, p.92-109. |
| Charleroi Métropole : un schéma stratégique 2015-2025, Charleroi : Ville de Charleroi, 2015, p.40-43. |
| Burssens P., «Entre deux portes» dans Charleroi magazine, janvier, 2011, p.6-7. |