Polyclinique du Mambourg (CHU de Charleroi)
Polycliniques
1939 - 1948
1939 - 1948
1957 - 1962
1957 - 1962
Réalisé
Ce vaste complexe de briques jaunes sur soubassement de pierre bleue doit sa construction à l'éminente personnalité du monde syndicaliste et socialiste de Charleroi, Arthur Gailly (1892-1974) dont l'un des combats fut l'amélioration des soins de santé pour les ouvriers et affiliés sociaux.
Le projet des Mutualités socialistes de Charleroi de construire un Institut médico-chirurgical naît en 1930. L'architecte Adolphe Puissant dresse en 1939 les plans d'un premier bâtiment en L de quatre étages. Élevé à l'angle de la rue Spinois et du boulevard Drion, il est inauguré en 1948.
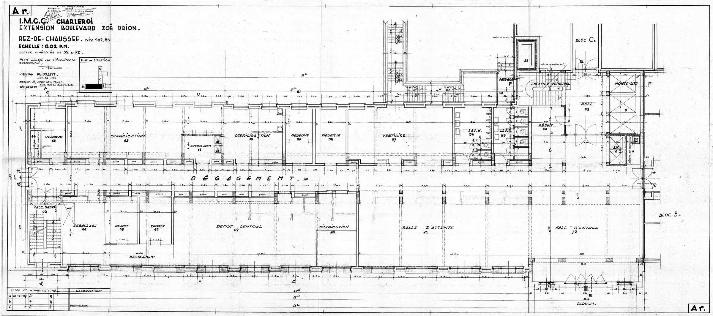
Les façades sobrement architecturées sont rythmées d'une succession de baies horizontales. La travée d'entrée plus haute, située à l'angle des deux ailes, est monumentalisée par une haute ouverture vitrée encadrée de pierre bleue. La capacité de ce premier édifice se révèle rapidement insuffisante. Érigé à partir de 1957 sur les plans de l'architecte Pierre Puissant, un nouvel ensemble de bâtiments plus vastes est inauguré en 1962.
Le long du boulevard, un bloc de neuf étages, l'Unité des malades, se complète de trois blocs moins élevés affectés aux différents services et refermant l'arrière de l'ancien complexe autour d'une cour intérieure. La façade du bâtiment principal ouverte de petites baies quadrangulaires est ponctuée d'une tour quadrangulaire, formant la jonction avec l'ancien édifice et marquant l'entrée.
Converti en « Espace santé » depuis 1995, le complexe héberge toujours différents services médico-sociaux et est mieux connu sous la dénomination de polyclinique du Mambourg (CHU Charleroi).
Anne-Catherine Bioul
| Sources |
|---|
| Adolphe Puissant (1878-1950). |
| CHU de Charleroi, Une Brique dans le vent, nos soins au fil du temps : évolution du patrimoine architectural du CHU de Charleroi, Marchienne-au-Pont : Socrate Editions Promarex, 2006, p.73-76. |