MédiaSambre

Bureaux

2013 - 2016 2013 - 2016
Réalisé

Le nouveau pôle audiovisuel de Charleroi, qui accueille la RTBF et TéléSambre, est un symbole du renouveau urbain. Son architecture renforce le caractère de la place de la Digue, récemment rénovée, tout en respectant les faibles gabarits des bâtiments la bordant. 

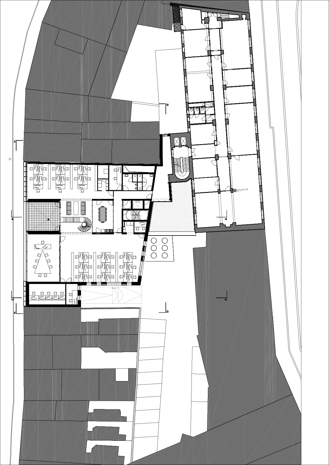
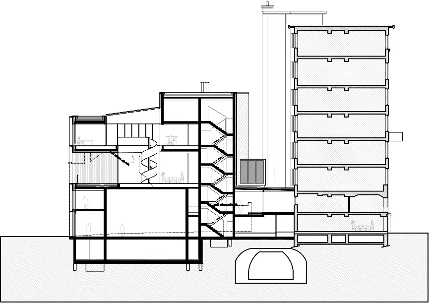
Il s'agit d'une architecture qui opère la médiation entre une dimension tertiaire et une vocation monumentale, tout en gardant le statut d'équipement public. Les exigences fonctionnelles sont grandes : tout en fabriquant un produit audiovisuel public, le bâtiment n'est pas aussi accessible qu'un équipement culturel normal. Il comprend, aux premier et deuxième étages, un grand studio de télévision avec une vue vers la place, au troisième niveau, un studio radio vitré profitant des vues sur la ville et une grande terrasse. Les rédactions sont situées aux troisième et quatrième niveaux. L'accès à l'immeuble se fait via l'ancien siège RTBF situé sur le boulevard Tirou, par le parking en intérieur d'îlot ou par la place de la Digue. 

La composition du nouveau volume permet d'offrir des vues dégagées aux locaux des rédactions, de préserver les vues vers la place depuis les logements voisins. La façade avant, largement vitrée, met en scène les fonctions collectives du bâtiment. Elle est animée par une alternance de pleins et de vides et permet de lire la profondeur du volume en installant un dialogue avec l'espace public.

Maurizio Cohen et Mélissandre De Negri

Sources
Charleroi Métropole : un schéma stratégique 2015-2025, Charleroi : Ville de Charleroi, 2015, p.146-149.
«MEDIASAMBRE» sur le site V+, en ligne http://www.vplus.org/mediasambre, consulté le 25/11/2017.
Archives de Vers plus de bien-être (V+).