Maison Mazurelle

Habitation unifamiliale

1936 1936
Réalisé

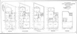
Maison personnelle de l'architecte, par ailleurs géomètre au charbonnage du Bois du Cazier, l'édifice se développe sur trois niveaux : le rez-de chaussée prévu pour accueillir le bureau, le bel-étage et le troisième niveau, composé des espaces de nuit. 

Les deux premiers s'organisent autour du hall d'entrée sur une double hauteur qui magnifie les espaces de réception. Le dernier étage est caractérisé par des apports indirects de lumière zénithale, au moyen d'une paroi translucide qui s'ouvre sur la cage d'escalier, elle-même percée de longues baies verticales. Il est desservi par un second escalier, plus discret, accolé à la façade arrière, perpendiculaire à l'axe de l'entrée. 

Sur la façade en briques jaunes vient s'ajouter aux étages un élément en surplomb, caractéristique de l'architecture de l'époque, qui contraste avec l'ensemble, par un jeu de volumes souple et courbe, et qui regroupe le bow-window, le balcon du bel-étage ainsi que la terrasse plus généreuse du troisième niveau. 

La toiture-terrasse du bâtiment témoigne des influences du modernisme : le solarium, accessible depuis le dernier niveau par un escalier supplémentaire, distingue la maison des édifices voisins.  La corniche est alignée sur les constructions adjacentes déjà présentes par un jeu de volumes qui semble faire référence aux cheminées et confère à l'ensemble son originalité.

Claire Boksebeld et Irène Lund

Sources
Archives communales de Charleroi.