Maison Dolpire

Immeuble à appartements

1946 1946
Réalisé

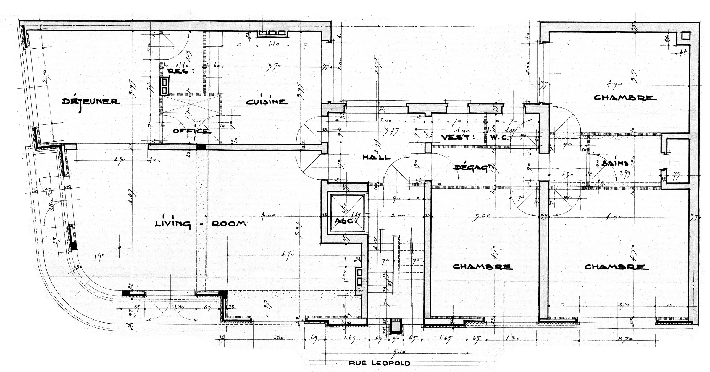
S'implantant sur un terrain d'équerre, ce bâtiment de Marcel Leborgne est peu connu du public. Aujourd'hui à l'abandon, il se compose de trois niveaux associant un rez-de-chaussée commercial et deux étages de logements. Le rez-de-chaussée, percé de larges vitrines aux châssis métalliques, offre des espaces généreux grâce à une hauteur sous plafond particulièrement importante, ce qui permet d'y implanter une mezzanine, optimalisant ainsi les espaces dédiés au magasin. On retrouve dans cette architecture les codes de conception que cet architecte moderniste affectionne. Traité en arrondi, l'angle des étages est mis en valeur par le verre courbe et les garde-corps, ainsi que par les terrasses qui s'inscrivent dans l'alignement de la voirie et qui prolongent les appartements situés à l'angle.

Coralie Berthelé