Logements piscine de la Broucheterre
Logement public
1932
1932
1997 - 2001
1997 - 2001
1997 - 2001
1997 - 2001
1997 - 2001
1997 - 2001
Réalisé
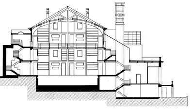
La piscine de la Broucheterre est construite en 1932 par Oscar Quinaux, sur un terrain situé à l'extrémité ouest de l'ancien site de l'Exposition internationale de 1911. Elle est implantée à un endroit où les travaux de nivellement avaient généré une forte différence de niveaux entre le plateau supérieur et la place de la Broucheterre, différences de niveaux qui, le temps de l'Exposition internationale, avait été mise à profit pour aménager un escalier monumental, ainsi qu'un square offrant un vaste panorama sur les cadrans nord et ouest du Pays noir.
La coupe de la piscine, implantée à l'emplacement de cette vaste scénographie urbaine, est pleinement inscrite et conditionnée par la pente. Le grand bassin s'installe parallèlement aux courbes de niveau et l'entrée principale de la piscine est orientée vers la place de la Broucheterre située en contrebas. La composition symétrique du bâtiment est soulignée par le jeu des escaliers d'accès qui accrochent la piscine au niveau naturel de l'espace urbain. Dans l'axe, affirmant le parti pris quelque peu fonctionnaliste de l'architecte, s'élance la cheminée de l'installation de chauffage du bassin.
À l'origine, l'architecture du bâtiment mêle un style néoclassique à un langage plus industriel fait d'une ossature en béton avec remplissage de briques. Faute d'investissements, la piscine, gérée par la ville est fermée en 1984 jusqu'à ce qu'en 1997, l'architecte bruxellois Pierre Blondel soit mandaté par la Société immobilière de service public La Carolorégienne en vue de transformer le bâtiment en logements.
Renouvelant un dispositif de logements autour d'une cour centrale qu'il avait déjà expérimenté quelques années auparavant à Bruxelles (rénovation d'un hôtel des postes en logements à la rue des Chartreux - 1994), Blondel propose de sauvegarder le bâtiment en insérant, suivant la trame structurelle d'origine, trente-trois logements orientés double face. Chaque appartement possède une terrasse ou un balcon orienté vers l'extérieur.
De l'ancienne piscine subsistent une partie du bassin aménagé en jardin couvert ainsi que la toiture vitrée. L'assise du bâtiment dans son contexte urbain est renforcée par la création d'un nouveau socle respectueux du principe de symétrie et accueillant escaliers et rampes PMR soulignés par un auvent périmétrique en béton.
Unique en son genre en Wallonie, la réaffectation de la piscine de la Broucheterre est le seul projet réalisé en Province de Hainaut par l'architecte bruxellois Pierre Blondel.
Irene Lund, Benoit Moritz
| Sources |
|---|
| De Cooman René & Bourgeois Victor, Charleroi, Terre dUrbanisme, Bruxelles : Éditions Art et Technique, 1946. |
| Blavier Jean, «Les logements sociaux dans lancienne piscine de la Broucheterre à Charleroi» dans Les Cahiers de l'urbanisme, n° 48-49, mars, 2004. |
| Cohen Maurizio, «La piscine Broucheterre à Charleroi» dans A+, n° 181, avril-mai, 2003, p.60-65. |
| Degembe Marie-Françoise, «Frédéric Flamand, un metteur en scène chorégraphe» dans Les Nouvelles du Patrimoine, n° 62, juin, 1995, p.14. |