Garage du Moulin

Immeuble à appartements Magasins Garage

1952 1952
Réalisé

Réalisé peu de temps après une maladie qui le laisse partiellement paralysé, l'architecte offre dans la lignée de ses immeubles d'habitation des années 1930 un édifice d'une rare richesse programmatique. 

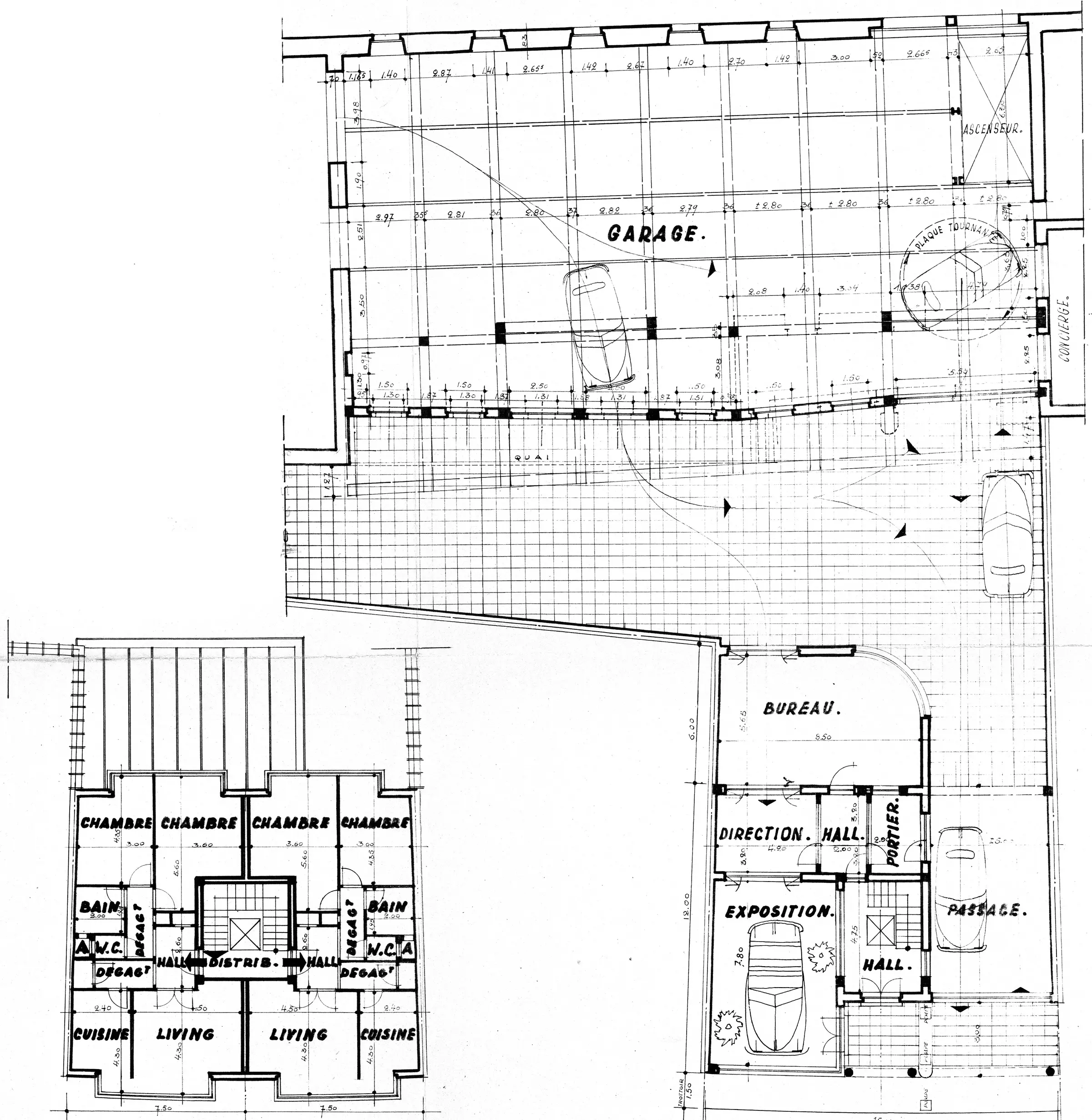
Véritable « machine à habiter », la construction rassemble des logements, des bureaux, des commerces, un garage et même, initialement, une station-service. Parquée à l'arrière, l'automobile est ravitaillée en carburant grâce aux pompes à essence situées à l'entrée des rampes. Les besoins des locataires sont satisfaits par les commerces du rez-de chaussée qui enserrent le hall d'entrée de la résidence. Richement décoré, celui-ci mène à la cage d'escalier et à l'ascenseur distribuant les six étages. L'axe central desservi par les circulations verticales conduit soit à l'espace de bureaux bénéficiant d'un balcon sur rue, soit vers la coursive débouchant sur les quatre appartements du niveau. 

Côté boulevard, la construction entièrement vitrée, cernée de menuiseries de couleur verte et or enchâssées dans la maille structurelle de béton, procure aux intérieurs une importante source de lumière naturelle. 

Le programme est aisément lisible de l'extérieur grâce à la composition d'une grande rationalité.

Théophile Flecheux et Irène Lund

Sources
Kremer Jean-François, Une analyse critique de la démarche de Marcel Leborgne, Bruxelles, ISACF La Cambre, 1988.
Hancart Cécile, À Charleroi, Marcel Leborgne, Charleroi, Espace environnement, 1990.
Fonds Marcel Leborgne, Archives Espace environnement, Charleroi.
Dubourg L., «La Résidence du Moulin immeuble pour garages et appartements boulevard Tirou, à Charleroi» dans La Technique des travaux, n° 11-12, Liège, novembre-décembre, 1957, p.343-348.