Galerie Langrand

Immeuble à appartements Galerie commerciale

1967 1967
Réalisé

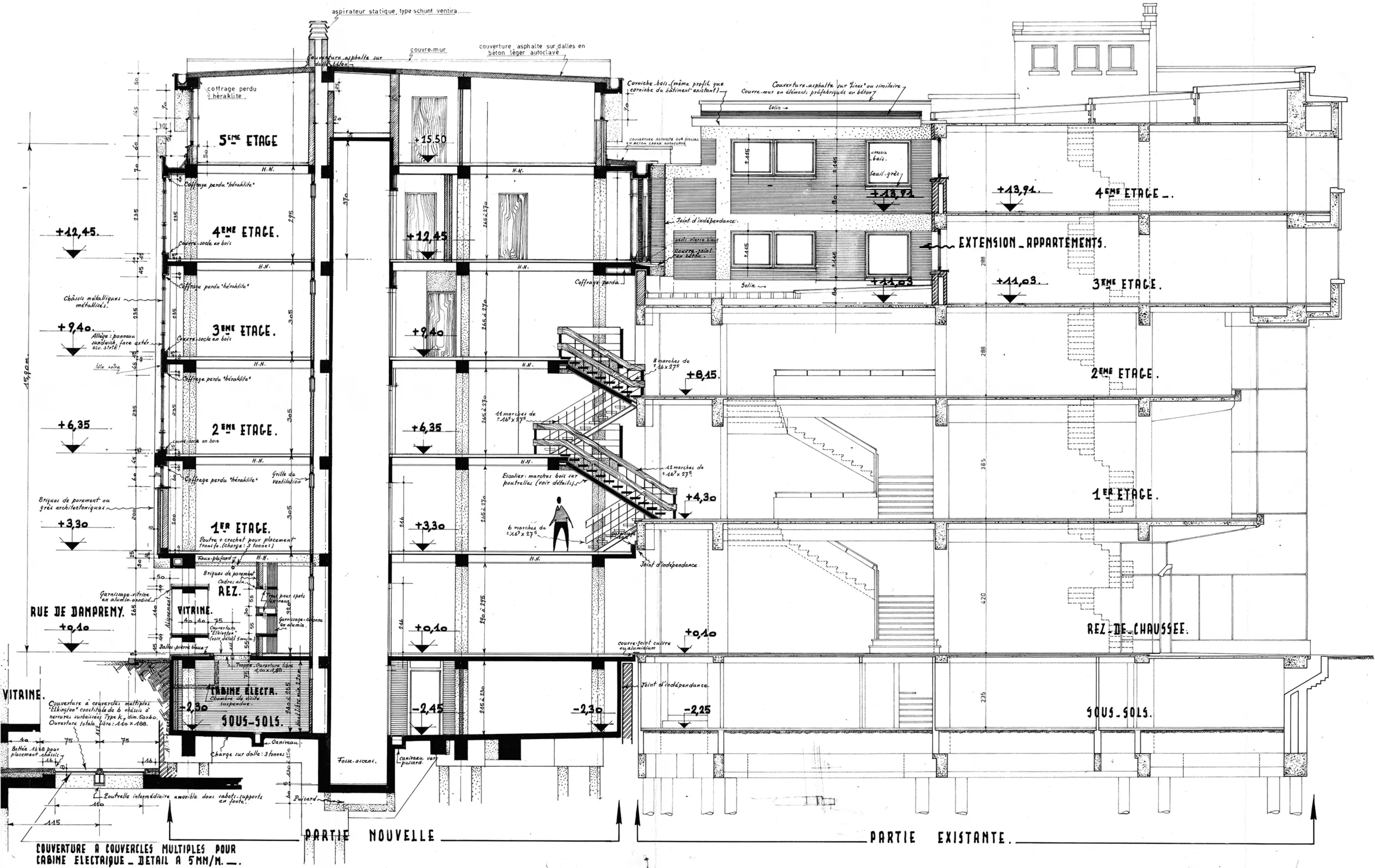
Ce projet porte autant sur l'organisation intérieure, sur l'extension des espaces, que sur la modification des façades donnant boulevard Tirou et rue Dampremy. 

L'ambition de la famille Langrand n'est plus seulement de proposer une boutique au cœur de la Ville Basse, mais bien de disposer d'une grande galerie commerciale moderne surmontée de logements. Le projet consiste donc à transformer l'immeuble de rapport, uniquement accessible depuis le boulevard Tirou, en un ensemble plus ambitieux traversant l'îlot jusqu'à la rue Dampremy. 

L'espace du rez-de-chaussée est entièrement traversant et crée une rue intérieure qui fluidifie la jonction entre la grande artère et la rue piétonne. Les deux élévations proposent une composition qui répond à la rue vers laquelle elles s'orientent et à ses caractéristiques urbaines.

Anne-Laure Iger