Galerie Bernard

Immeuble à appartements Galerie commerciale

1950 - 1953 1950 - 1953 1954 - 1956 1954 - 1956
Réalisé

Ce passage couvert est un témoin des transformations urbaines du centre-ville de Charleroi à la suite du comblement de la Sambre qui deviendra le boulevard Tirou. Ces opérations débutent pendant l'entre-deux-guerres et ne sont achevées qu'à la fin des années 1940. À ce moment, plusieurs projets immobiliers voient le jour le long de la nouvelle voirie. 

Cette galerie est l'initiative du promoteur Gustave Bernard qui fut également le directeur du théâtre des Variétés pendant trente ans. La première proposition de l'ingénieur-architecte Pol Ongenae datant de 1950, affichant une architecture aux accents d'Art déco stylisé, est refusée. Une deuxième, d'une expression plus franche dans son académisme épuré, est dessinée en 1952 et approuvée l'année suivante. Le projet est repris fin 1954 par Henri Leborgne qui en assure l'exécution.  

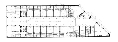
Le passage est une voirie privée qui permet de relier une ancienne rue du centre au nouveau boulevard, tout en érigeant le long des rues deux grands immeubles de logements. Bordée de part et d'autre de commerces, elle est couverte par une voûte basse en pavés de verre disposés avec un profil cintré. L'espace est monumental, rythmé par la structure régulière des travées et souligné par l'habillage en pierre. 

Le revêtement de sol est sobre et sa disposition régulière en carreaux de pierre renforce la cohérence du parti architectural de l'ensemble. La rigueur de la composition classique des façades atténue la perception de la pente naturelle du terrain, mais amplifie les effets visuels des perspectives. 

Le dessin des vitrines des commerces — développés sur deux niveaux —est relevé par l'usage de châssis métalliques, alternant des éléments dorés et peints en vert. Ces éléments rappellent la galerie Ravenstein de Bruxelles construite entre 1954 et 1958 par Alexis et Philippe Dumont, tout en ayant une taille plus modeste. 

La galerie abrite l'espace d'exposition Incise, animé par Marie-Noëlle Dailly et Benoit Dusart.

Maurizio Cohen