Crèche Achille Dourlet

Crèches Cabinets médicaux / dentisterie

1958 - 1963 1958 - 1963
Réalisé

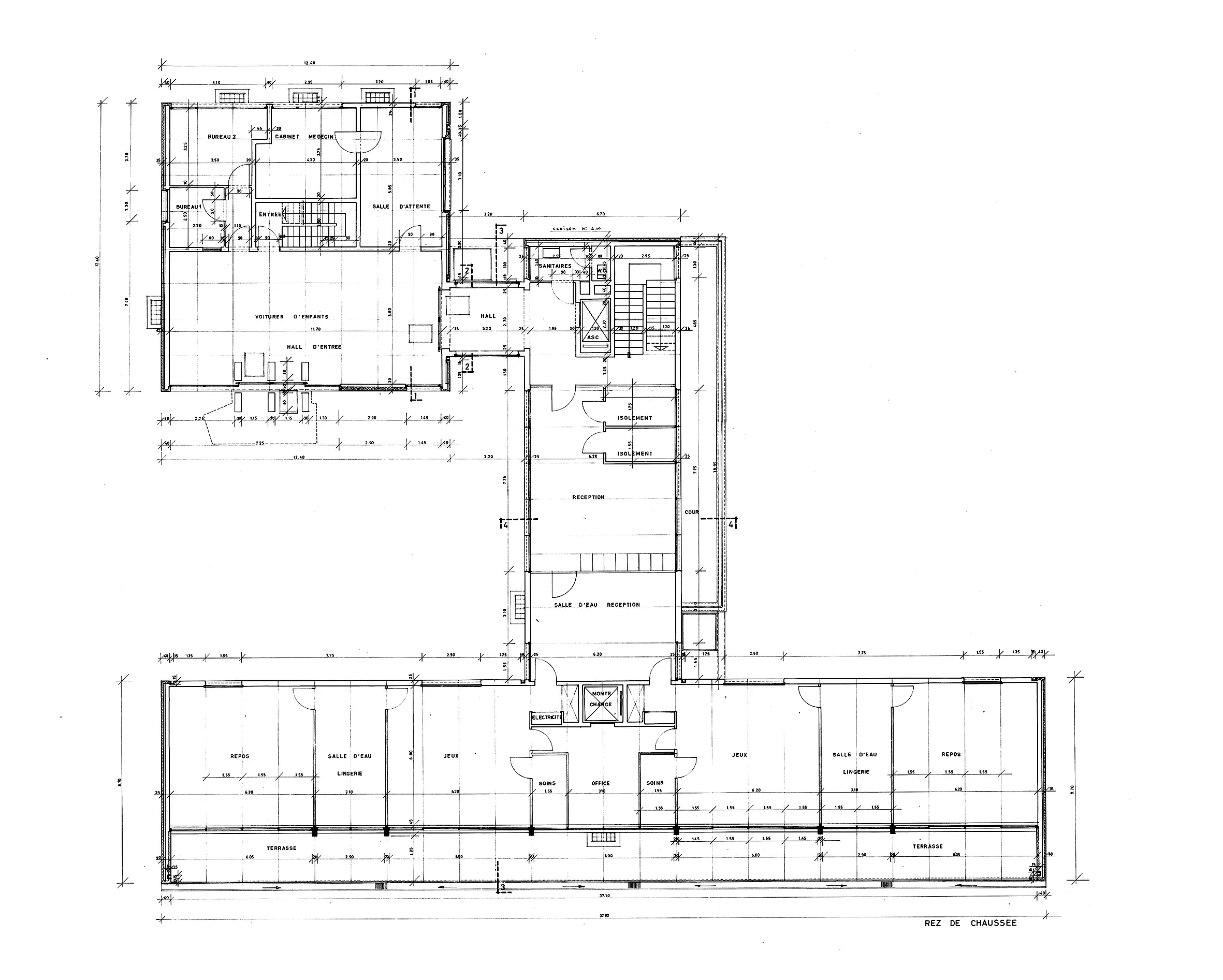
L'implantation de la crèche Docteur Dourlet est pensée comme un ensemble de bâtiments raccordés sur les deux premiers étages. Le premier, de quatre niveaux à plan en T, fait directement référence au programme de la crèche. 

Sa situation lui permet d'offrir un jardin en lien direct avec les salles du rez-de-chaussée. Il était prévu, sur la toiture du bâtiment, de placer un logement. L'idée sera abandonnée par les architectes qui opteront pour une terrasse de jeux/solarium. Le second édifice, de trois étages sur plan carré, a une fonction administrative ; il permet de définir une cour d'accueil dans laquelle sont placés l'entrée publique et l'accès à un cabinet de pédiatrie. 

La circulation verticale de la crèche se situe au pied du plan en T, permettant de traverser à chaque étage une zone tampon avant d'arriver au palier des salles du complexe. Dans un souci de flexibilité, les architectes ont mis en place des cloisons amovibles sur toute la longueur du bâtiment, permettant d'obtenir un plan libre à chaque niveau.

Vincent Ung et Irène Lund

Sources
Bade A., «La crèche communale "Docteur Achille Dourlet" à Charleroi (Belgique)» dans La Technique des travaux, n° 7-8, Liège, juillet-août, 1969, p.195-199.
«Crèche communale docteur Achille Dourlet à Charleroi» dans La Maison, n° 4, avril, 1967, p.130-133.