Collège des jésuites et chapelle du Sacré-Coeur

Eglises ou apparenté Ecoles secondaires Ecoles primaires

1927 1927 1927 1964 1964 1973 - 1974 1973 - 1974
Réalisé

Neuf ans après la construction d'une nouvelle aile pour accueillir les classes de l'école primaire par le groupe Structures, en 1964, la Congrégation des jésuites est confrontée à un nouveau défi qui coïncide avec le centenaire de son implantation au centre de Charleroi. 

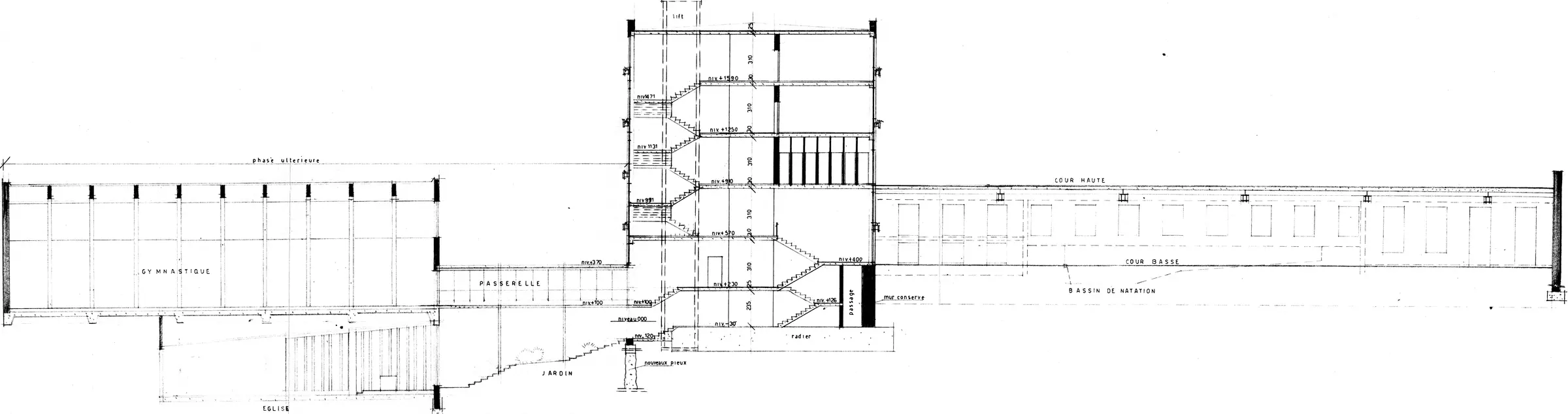
À la suite d'une décision de la Ville de les exproprier d'une partie de leurs biens afin d'élargir la voirie publique, elle doit entreprendre un vaste programme de démolition et de modernisation de ses infrastructures pédagogiques. Le masterplan dressé par Rousseaux prévoit de préserver l'aile construite en 1964, mais également les fondations des anciens bâtiments, ainsi que le préau réalisé en 1927 par Marcel et Henri Leborgne, eux-mêmes anciens élèves du collège. Celui-ci sera intégré dans le nouveau projet et servira de structure portante pour le réfectoire au premier étage de l'aile perpendiculaire au boulevard Audent, reconstruite par Rousseaux. 

La partie la plus remarquable de l'ensemble est le conglomérat de bâtiments réunis dans la rue de Montigny avec les appartements des jésuites, une salle de spectacle, une série de magasins et, surtout, une chapelle surmontée d'une salle de gymnastique dont la volumétrie est recouverte de tôles en acier profilé. 

Dans la rue, ce volume attire l'attention et offre une entrée couverte à la chapelle dont le plan carré est atténué par l'introduction d'une série d'éléments aux parois courbes qui organisent l'entrée, le confessionnal et le chœur. Une des parois vitrées de la chapelle est couverte d'un vitrail de la main d'André Bouler.

Iwan Strauven