Cité sociale rue Terre Al Danse

Logement public

1969 1969
Réalisé

Les deux blocs qui composent cet ensemble de logements sociaux s'insèrent à la croisée des rues, sur un terrain en légère pente. Malgré les 4 500 m² disponibles, Charles Bailleux, l'architecte, a pris le parti de libérer au maximum les abords et de concentrer l'ensemble des appartements sur une emprise au sol minimale. 

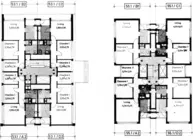
Les deux tours, fort compactes, s'élèvent sur dix-huit niveaux, à plus de 50 m du sol. Elles s'ancrent dans une zone affectée par les mouvements miniers et disposent donc de fondations particulièrement importantes. Le plan, rigoureux et symétrique, dessert, dans le cas des deux blocs, quatre appartements identiques à chaque étage. 

Chacun des logements se compose de deux chambres, un grand living, une salle de douche et une cuisine ouverte sur une loggia. Briques de parement sablées et de verre viennent s'alterner pour remplir l'ossature en béton armé, dans les étages. Au rez-de-chaussée, les soubassements sont habillés de schiste ardoisier.

Anne-Laure Iger