Bureaux de l'ONEM

Bureaux

1975 - 1978 1975 - 1978
Réalisé

À l'étroit dans ses bureaux, l'ONEM confie à l'architecte Jean Yernaux le projet de construction de ses nouveaux locaux sur une parcelle jouxtant par l'arrière ses installations existantes, localisées à la rue de Montigny. 

La réalisation de cet immeuble s'inscrit dans le cadre du processus de modernisation de la Ville Basse, avec, en particulier, ici, le projet d'élargissement de la rue du Pont Neuf (du côté des chiffres impairs) en vue de la réalisation du métro. L'élargissement de la rue, porté à approximativement 31 m (contre 15 m initialement) permet à l'architecte de concevoir un immeuble disposant d'un gabarit proportionné à la nouvelle largeur de la voirie, et, de ce fait, en rupture avec les immeubles plus anciens qui lui sont mitoyens. 

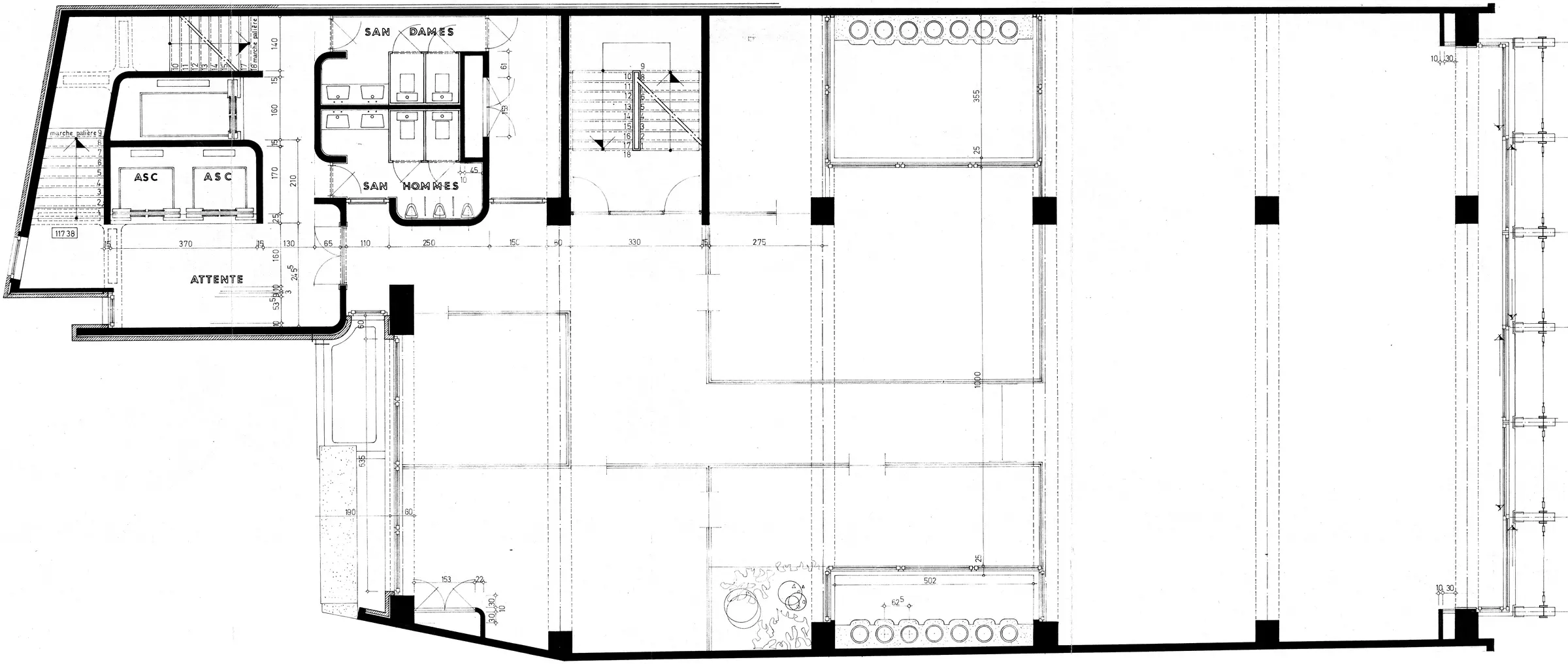
L'architecte conçoit ainsi un bâtiment se développant sur huit niveaux hors sol. Le rez-de-chaussée est aménagé avec un accueil qui permet d'orienter les visiteurs vers les six premiers niveaux dans lesquels sont dispensés les services à destination des travailleurs et des chercheurs d'emploi. Le septième étage est réservé au restaurant de l'administration. 

L'immeuble se caractérise par le dessin modulaire de sa façade à rue, composé en six travées de tubes en acier inoxydable formant une structure disposée en porte-à-faux. Le traitement relativement hermétique du rez-de-chaussée traduit la présence d'un parking à ce niveau, se développant également au premier sous-sol. 

L'ensemble du processus de conception et de réalisation du projet se caractérise par sa rapidité : l'immeuble est conçu en 1975, le chantier est entamé en septembre 1976 et l'immeuble est livré au cours de l'année 1978.

Benoit Moritz