BPS22
Jalon XX
Centre d'exposition
1911
1911
2014 - 2015
2014 - 2015
2014 - 2015
2014 - 2015
Réalisé
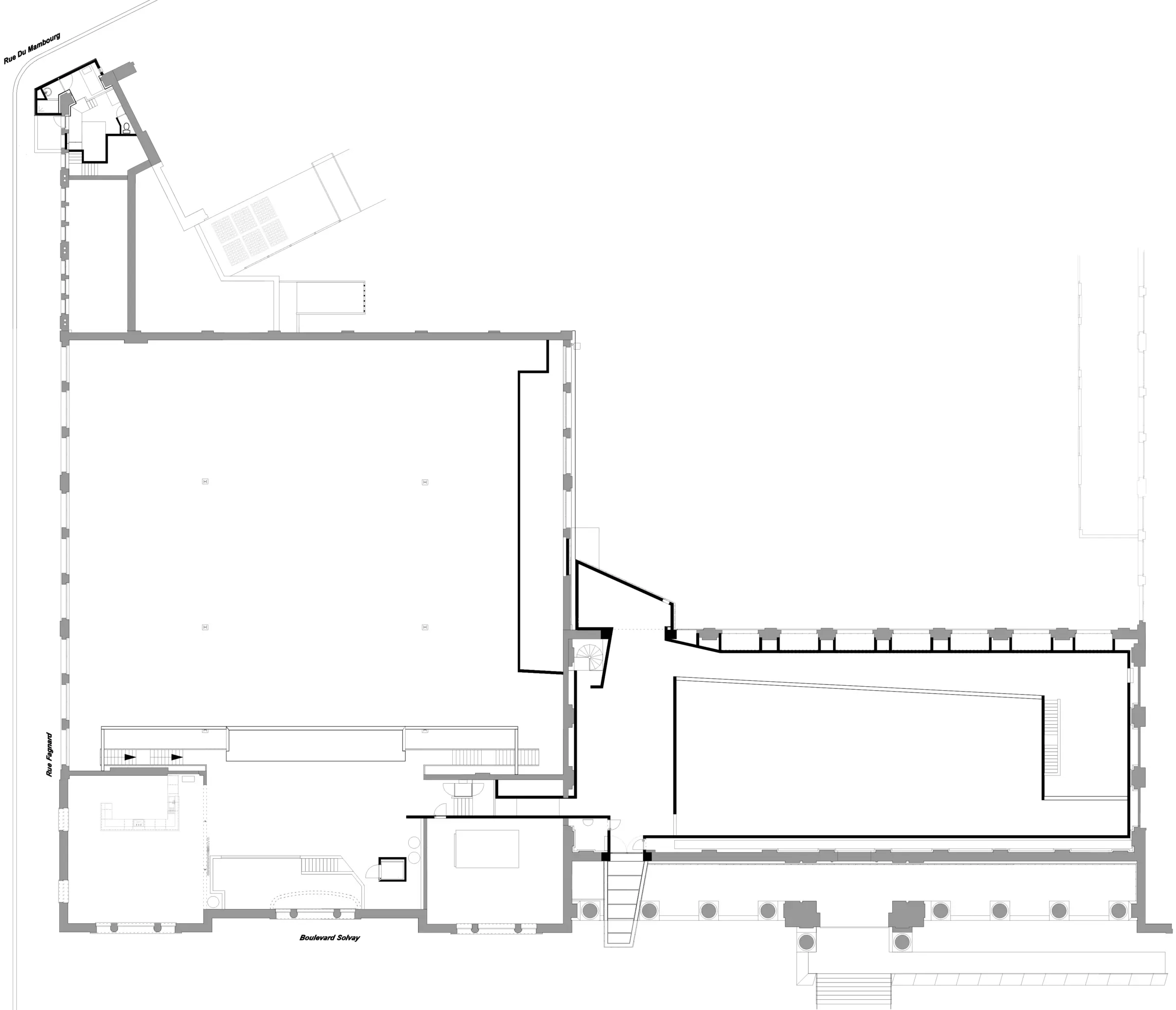
Le Palais de l'Art wallon est situé en face du bâtiment Gramme et est un contemporain de celui-ci. Il a été édifié à l'occasion de l'Exposition internationale de Charleroi en 1911 afin d'y accueillir une exposition dédiée à l'art wallon. Les deux bâtiments étaient les premiers auxquels les visiteurs de l'Exposition étaient confrontés, une fois passée l'entrée payante située à hauteur de la rue Fagnart. Le Palais de l'Art wallon présente la particularité d'avoir été conçu et réalisé par Gabriel Devreux, architecte et fils d'Émile Devreux devenu en 1904 le bourgmestre de Charleroi. L'entrée est marquée par la présence d'une colonnade extérieure de style néoclassique, d'un volume central et de deux ailes se caractérisant chacune par la présence visuelle d'une grande verrière centrale visible depuis le boulevard. Pendant l'exposition de 1911, le bâtiment accueillait deux salons, organisés respectivement dans chacune des ailes : un salon des Arts anciens du Hainaut et un salon d'Art moderne. Après la manifestation, le complexe est intégré à l'Université du Travail, et les deux ailes accueillent des ateliers consacrés à la menuiserie, la ferronnerie et la soudure tandis que le bâtiment central devient un gymnase. Le bâtiment est aussi appelé Bâtiment provincial Solvay, dénomination qui sera à l'origine du nom BPS22 (pour le n° 22). En 2000, l'une des ailes du bâtiment est attribuée au Secteur des Arts plastiques de la Province de Hainaut afin d'en faire un espace de création contemporaine (le BPS22). Plusieurs phases de rénovation sont alors entamées sur base de budgets limités. À l'issue d'un concours d'architecture, une phase de rénovation lourde est amorcée en 2014-2015 suivant les plans du bureau d'architecture Archiscénographie Roland. La Grande Halle est maintenue dans son caractère industriel et une « white box » est réalisée à l'endroit de l'ancien gymnase, désormais intégré au complexe d'exposition. La façade principale du bâtiment étant classée, les interventions sur celles-ci sont limitées et consistent en une mise en place d'un balcon saillant en polycarbonate, ainsi que d'une excroissance sous forme de balcon à l'angle des rues Fagnard et du Mambourg. Tout comme pour le Gramme, certaines parties du bâtiment (façades et toitures central et ailes latérales, notamment) font l'objet d'un arrêté de classement en juin 2004.
(voir aussi : Bâtiment Zenobe Gramme ; L'Université du Travail (District créatif) ; Administration et bibliothèque de l'Université du Travail ; Bâtiment Langlois ; La Vigie hennuyère ; Bâtiment Roullier ; Chaufferie centrale)
Benoit Moritz
| Sources |
|---|
| Robert Yves & Bioul Anne-Catherine, «Charleroi unique et multiple» dans Les Nouvelles du Patrimoine, n° 108, 2005, p.29-31. |