Bibliothèque communale Arthur Rimbaud
Bibliothèques, centres de documentation, centres d'archives
1964
1964
1964
Réalisé
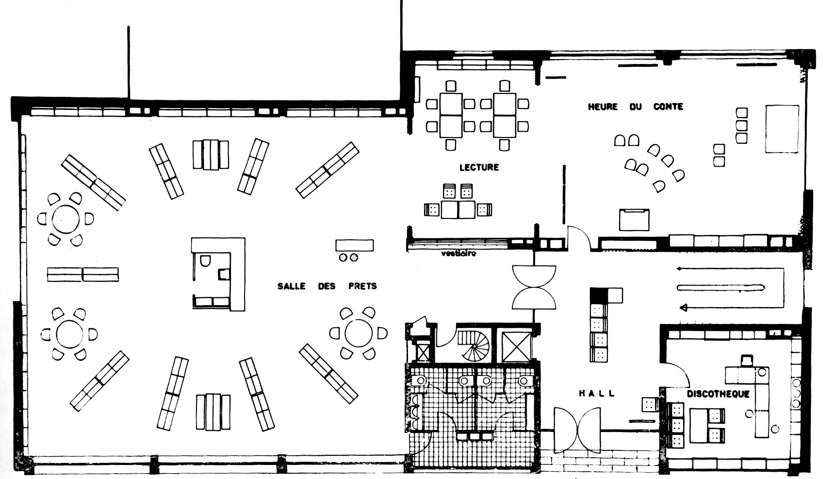
Installée autrefois dans l'ancien conservatoire de la ville, la nouvelle bibliothèque est construite pour répondre aux besoins de culture et de loisirs de la ville et de la région. Intégrée au complexe scolaire Cobaux, le bâtiment se compose de quatre niveaux.
Le sous-sol et le rez-de-chaussée abritent les rayons jeunesse et petite enfance, tandis que le premier étage est occupé par la salle de prêt pour adultes, le bureau du bibliothécaire et une salle de lecture. La réserve se trouve au dernier étage. L'entièreté de l'équipement mobilier, composé de bois et de métal, est dessinée par les architectes dans un but d'adaptation à des besoins précis et particuliers.
L'espace intérieur est particulièrement épuré avec, pour seule décoration, les éléments en bois, ce qui apporte une certaine élégance appropriée à cet espace de culture. La façade du bâtiment à rue laisse transparaître sa structure en béton, quadrillage dans lequel viennent se placer de grandes baies vitrées aux châssis métalliques illuminant l'intérieur du bâtiment et créant un rapport privilégié avec la rue. Les trois autres façades sont composées de briques de parement jaune clair.
Mathilde Morin et Irène Lund
| Sources |
|---|
| «La Bibliothèque communale de Charleroi» dans Architecture, n° 60, septembre-octobre, 1964, p.658-663. |
| «Bibliothèque communale, à Charleroi» dans La Maison, n° 9, septembre, 1964, p.276-280. |