École clinique provinciale
Autres bâtiments universitaires / hautes écoles
1948 - 1979
1948 - 1979
Réalisé
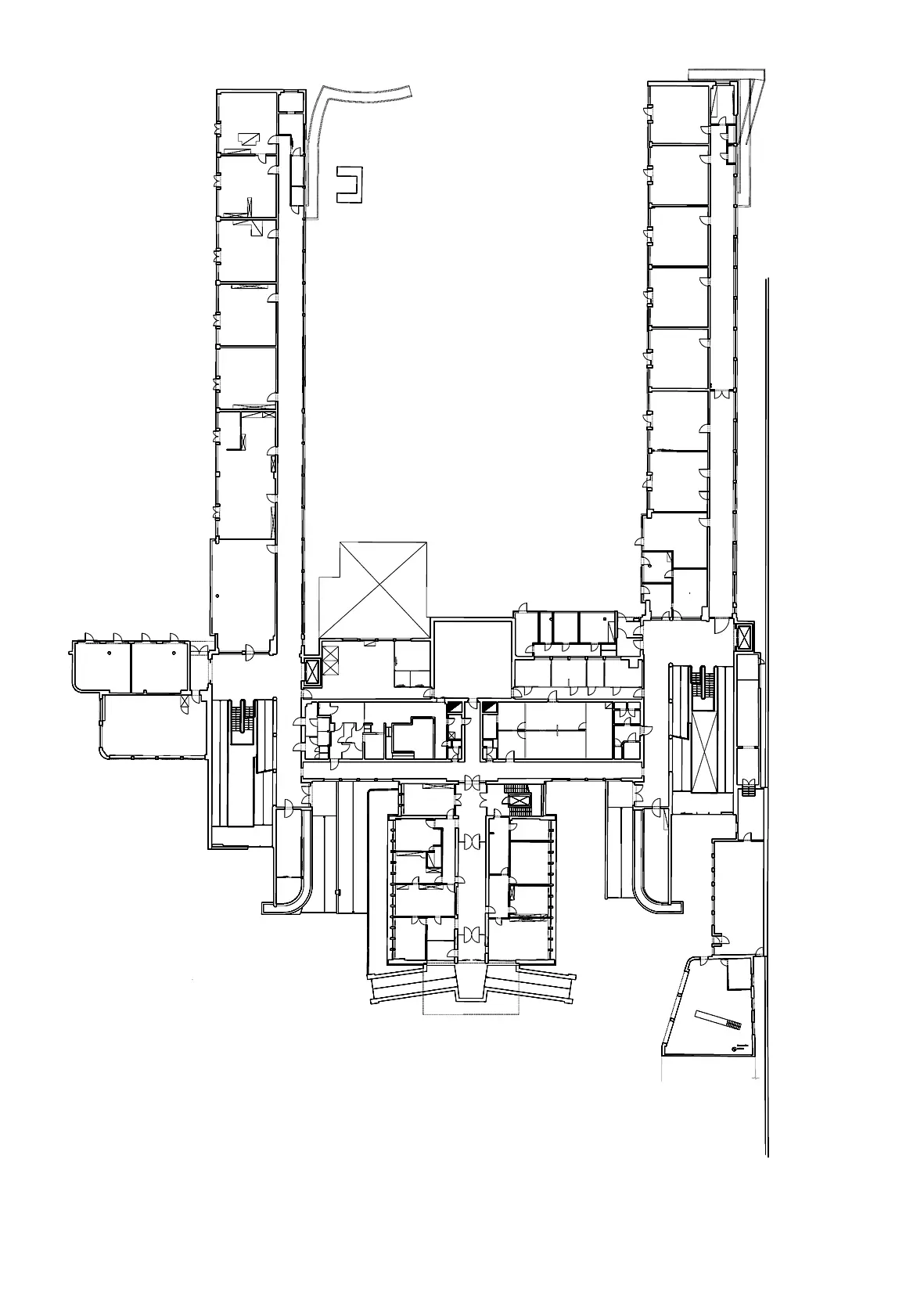
Peu visible depuis le domaine public, l'école clinique provinciale s'inscrit en plein cœur d'ilot, son périmètre étant délimité par les arrière-jardins d'habitations unifamiliales.
L'ensemble bâti qu'elle forme s'avère particulièrement hétéroclite, conséquence de l'accumulation des constructions au fil des années. Des constructions d'échelles diverses, dont le nombre et la dispersion rendent difficile la lecture du site. On remarque néanmoins le corps de bâtiment principal et son écriture « brutaliste », en pleine expansion dans les années 1950.
Caractéristiques du style, la mise en œuvre du béton et l'exhibition de la structure sont bien opérantes ici. L'avancée d'un volume surplombant constitue à ce titre une occasion de mettre en scène les efforts structurels, en même temps qu'elle crée un événement plastique sur la rue. Un peu plus en retrait, le bâtiment adopte un gabarit bien moindre et des formes arrondies, évocatrices de l'architecture des années 1930.
À noter enfin, l'attention apportée à l'un ou l'autre espace de circulation : au sein de l'édifice, où escaliers, rampes et passerelles s'agencent autour d'un vide tout en hauteur ; à l'about de l'une des ailes de l'internat, où un escalier extérieur lance un grand mouvement vers la cour centrale.
Charlotte Lheureux
| Sources |
|---|
| Archives de la Province de Hainaut. |