Musée de la photographie

Musées

1996 - 2008 1996 - 2008 1996 - 2008 1996 - 2008
Réalisé

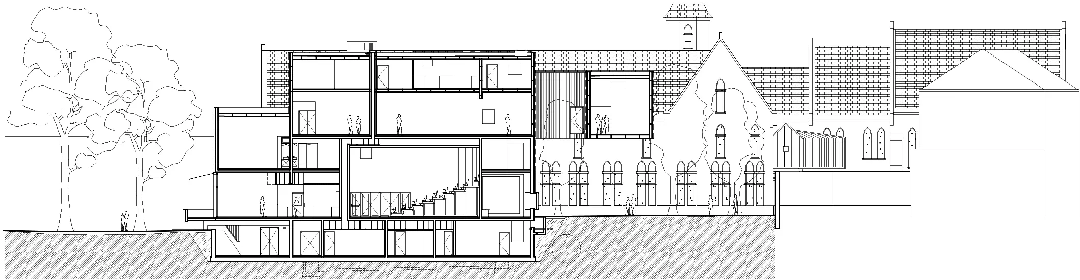
C'est sur un ancien couvent carmélite néogothique construit au XIXe siècle que s'appuie la nouvelle aile du musée de la Photographie de Charleroi. Le musée est marqué de différentes temporalités de transformation, menées par l'architecte Olivier Bastin : la reconversion du couvent en 1987, une rénovation en 1996, un travail scénographique en 2003 et, enfin, l'extension de 2008. 

Alors que le musée accueille déjà trois expositions par an et plus de quarante mille visiteurs, le musée s'est imposé en Europe comme l'une des références en matière de photographie. Une rénovation complète devient urgente. Les curateurs et directeurs Georges Vercheval, puis Xavier Canonne, ont fait du musée un lieu d'échange avant tout. En ce sens, la Fédération Wallonie-Bruxelles commande la réalisation d'une nouvelle aile qui intègre des espaces d'exposition additionnels, une cafétéria, une librairie, un auditoire, des espaces de stockage et des bureaux. 

Ce sont donc tous les espaces du musée qui se bousculent et se redistribuent entre le couvent et l'extension. Celle-ci se situe dans un intérieur d'îlot urbain planté, dans l'ancien verger du couvent. La place du végétal reste importante dans la conception du projet, que ce soit par les plantes du jardin d'hiver, par les poteaux supportant une partie du porte-à-faux ou par le dégagement du sol que celui-ci permet. 

L'effort de conception se concentre dans le travail du volume de l'extension et dans sa matérialité. En effet, ce volume flottant au-dessus d'un lit de fougères et percé d'un puits de lumière est sans doute l'image la plus emblématique du projet. L'opacité de la nouvelle aile répond à celle du couvent carmélite. Par opposition, la jonction entre les deux est faite par un petit volume complètement transparent. 

Le traitement de la façade résulte d'une collaboration avec l'artiste belge Jeanine Cohen qui conçoit l'enveloppe en aluminium ondulé. Le dispositif constructif est ambitieux et se compose de panneaux en bois massif contrecollés servant de supports structurels du porte-à-faux. Ce sont les prouesses du bureau de stabilité d'Yves Weinand qui ont permis cette performance.

Aliki Loizidis et Maurizio Cohen

Sources
Dassonville Chantal & Cohen Maurizio, Le Musée de la photographie, Charleroi, Bruxelles : FWB, 2009.
Capezzuto R., «Museo della fotografia a Charleroi» dans Domus, n° 992, février, 2009.
Boone Véronique, «Museum extension, Charleroi» dans A10, n° 24, novembre-décembre, 2008.
Contesse Audrey, «Du regard cloîtré à l'exhibition» dans A+, n° 212, juin-juillet, 2008, p.60-66.
Devoldere Stefan, «La maîtrise d'ouvrage publique en communauté française. Interview de Chantal Dassonville.» dans A+, n° 200, juin-juillet, 2006, p.40-46.