Les Closières

Logement public

2013 2013
Réalisé

Le nouveau quartier Les Closières comportera, à terme, six cent cinquante logements sur 18 ha au sud de la ville de Charleroi, sur un ancien site minier, occupé par une végétation spontanée. Le projet est basé sur le modèle des éco-quartiers comme celui de Vauban à Fribourg. 

En augmentant la densité des logements et en diminuant leur emprise au sol, les architectes sont parvenus à préserver d'importantes zones d'espaces verts. Une série d'équipements viendra progressivement le compléter avec des commerces et des services, tout en privilégiant une mobilité douce dans l'ensemble du site. 

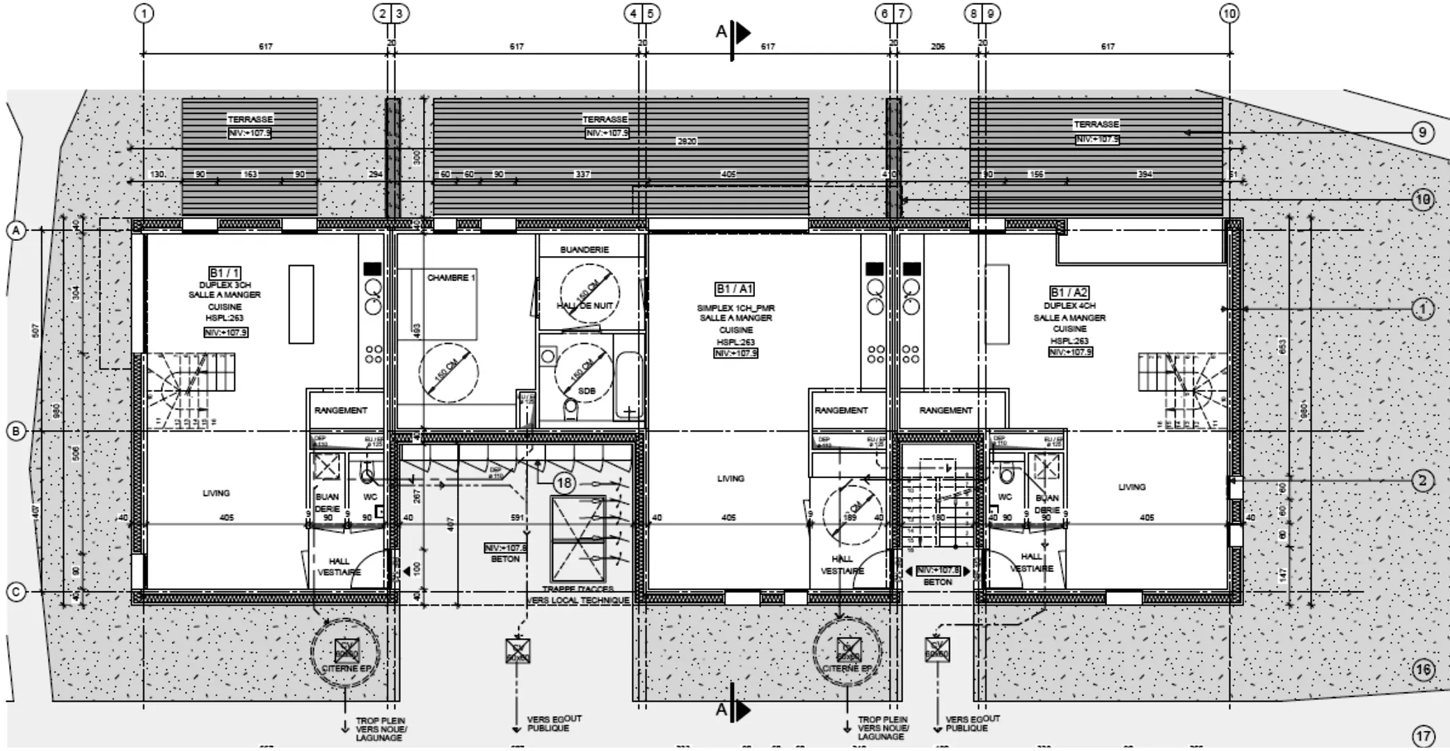
La trame des implantations est développée depuis les rues et les chemins existants dans le but de reconstituer une structure globale cohérente. Deux typologies d'habitats sont prévues : des logements avec des caractéristiques plus urbaines en liaison avec les quartiers existants et des logements dans une zone « végétale » inscrits dans un parcours libre et entourés de végétation. 

Les volumes se développent également selon une trame obtenue à partir de modules constructifs de base. Cette souplesse permet une infinité de combinaisons différentes, selon les besoins. Les matériaux utilisés sont, pour la plupart, renouvelables et s'inscrivent dans une démarche durable. Les toits-terrasses végétalisés permettent tout à la fois une meilleure isolation thermique et un meilleur traitement des eaux pluviales. L'utilisation massive du bois en façade souligne, enfin, le caractère environnemental du projet.

Maurizio Cohen

Sources
Albin D., «Un village aux portes de Charleroi» dans Le Soir, 17 février, 2011, p.22.
Archives de Baneton-Garrino Architectes.