Siège de la maison d'édition Dupuis

Bureaux

1993 - 1995 1993 - 1995
Réalisé

Les éditions Dupuis doivent leur célébrité au Journal de Spirou, fondé en 1938, et aux bédéistes Jijé, Franquin, Morris, Will, Jidéhem, Peyo, Roba, etc. qui formeront « l'École de Marcinelle ». En 1993, elles commandent à Philippe Samyn leur nouveau siège social. Elles demandent de réaliser un projet qui puisse s'adapter à de rapides changements d'usage. 

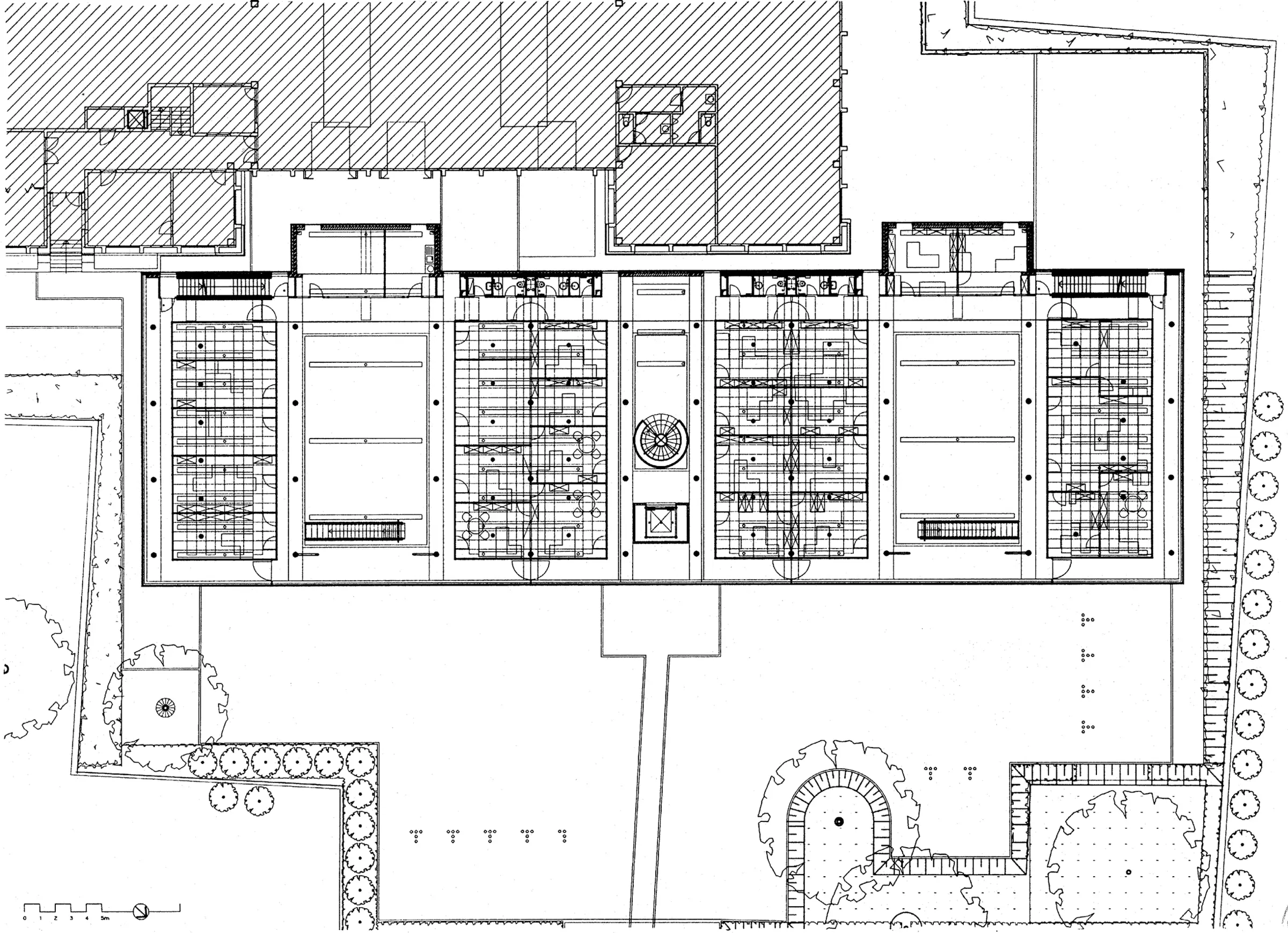
Sur le site se trouvent déjà les imprimeries principales de la maison d'édition. Les nouveaux bureaux doivent donc servir aussi d'enseigne à la société. Le bâtiment est surélevé et le rez-de-chaussée est évidé. Une plateforme, supportée par des colonnes, pose les limites du bâtiment. Seul un petit volume servant de sas d'accueil perce la dalle et touche le sol. Cette disposition permet de ne pas perturber les activités de l'imprimerie. Le chargement des camions et toutes les activités concernant la distribution de la compagnie s'opèrent sous cette plate-forme. Aussi, cela dégage des emplacements de parking pour les employés. Une seconde plateforme percée en trois points par des excroissances referme le volume principal et laisse toutes les façades entièrement vitrées. 

Contrairement à ce que peuvent laisser croire les trois volumes saillants, il s'agit d'atriums, de grands vides séparant quatre blocs de bureaux, offrant de la lumière dans l'épaisseur du bâtiment. Ces grands volumes vides assurent la circulation verticale par de grands escaliers en colimaçon et la circulation horizontale par des passerelles longeant la façade. Les espaces de travail et de réunion, eux-mêmes vitrés, sont accessibles par les atriums ou par un couloir arrière plus discret qui accède aussi aux espaces techniques, contre la façade sud-ouest. Celle-ci est, par conséquent, pratiquement aveugle. Le bâtiment est équipé d'une ventilation et de chauffage qui rejettent l'air dans les atriums. 

Pour ce qui est de la structure, le bâtiment est composé de colonnes de béton et de plates-formes creuses. La régularité de l'ensemble permet d'utiliser des éléments modulaires et de réorganiser certains espaces de travail.

Aliki Loizidis et Maurizio Cohen

Sources
Samyn Philippe & Loze Pierre, Devenir moderne ? Entretiens sur l’art de construire, 1999, p.138-141.
Cardani E., «Semplicità e transparenza» dans L'ARCA, n° 98, novembre, 1995, p.42-47.
Loze Pierre, «Nouveau siège social des éditions Dupuis à Marcinelles» dans A+, n° 139, avril-mai, 1996, p.32-45.