Maison Labasse

Habitation unifamiliale

1975 1975
Réalisé

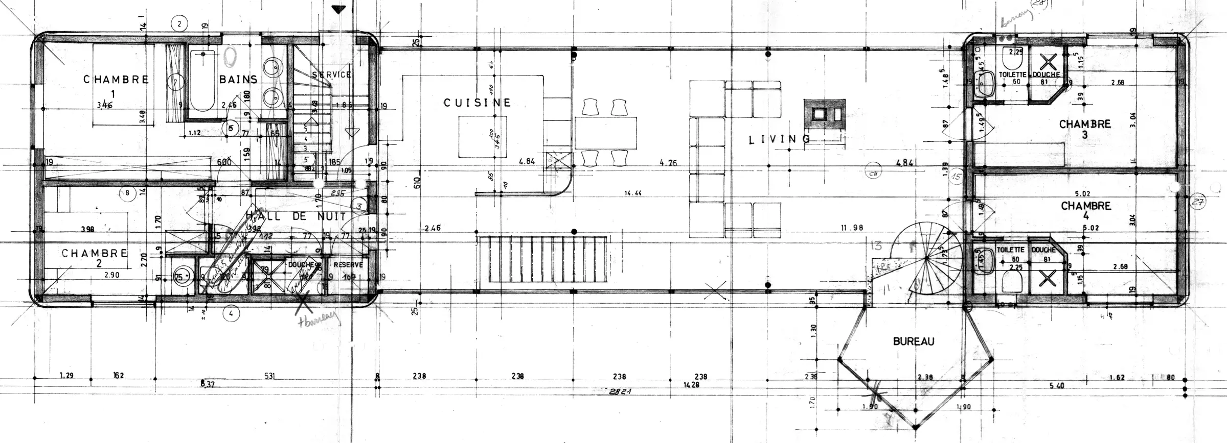
Le docteur Labasse, éminent chirurgien du cerveau, sollicite Claude Stampe pour un programme assez original dans ce quartier résidentiel. Amoureux de la nature, le médecin veut vivre en communion avec les arbres. Son bureau doit, en outre, évoquer la spécificité de ses trépanations, qui suivent le tracé d'un pentagone. L'architecte établit donc la maison très en retrait de la voirie, au cœur d'un bosquet. Longue et basse, celle-ci est bardée de bois foncé aux extrémités, où se logent discrètement, en contrebas à gauche, l'entrée et le garage et, au bel-étage, les quartiers des chambres. La partie centrale, presque entièrement vitrée, offre de belles échappées visuelles aux pièces de vie. À droite, une petite aile pentagonale en retour et semi-enterrée accueille le bureau où l'occupant peut asseoir son regard à hauteur des feuilles et des herbages.

Annique Vandael