Athénée royal Les Marlaires

Ecoles maternelles Ecoles primaires

1977 1977
Réalisé

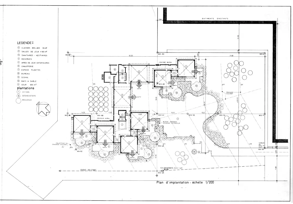
En 1977, les Fonds des bâtiments scolaires de l'État proposent de construire une extension à l'athénée pour accueillir les élèves les plus jeunes. Le projet, constitué de six salles de classe et de deux espaces de jeux, vient se nicher entre des petites maisons unifamiliales, l'église de la Providence et les ailes plus anciennes du groupe scolaire des Marlaires. 

Le nouveau bâtiment, fort fragmenté, se déploie sur la parcelle et dévoile très nettement sa composition. Il se pose en rupture avec l'orthogonalité et la linéarité de l'infrastructure existante. Chacune des classes et des salles de jeux se distingue clairement avec sa toiture à quatre pans ; le plan fonctionne par juxtaposition d'entités et forme un réseau desservi par de larges dégagements. Les salles de classe, toutes identiques, disposent chacune d'un accès direct à l'extérieur et se prolongent par des petites aires de jeux avec bac à sable. Les salles de jeux, au centre du projet, sont installées à l'intersection entre les deux orientations du bâtiment et s'ouvrent vers la grande cour de récréation. 

Les façades de briques brunes, entrecoupées de grandes baies, se déploient largement, renforçant l'impression d'horizontalité du bâtiment.

Anne-Laure Iger