Aqua 2000

Piscines

1973 1973
Réalisé

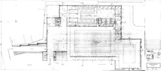
La piscine communale s'implante en retrait de la chaussée de Nivelles, procurant une intimité et une relation privilégiée avec le parc aménagé avoisinant. Son architecture est composée d'un jeu d'addition et d'imbrication de volumes aux fonctions clairement définies : un hall avec espaces administratifs, deux bassins, une cage d'escalier et un espace de cabines et douches. Le grand bassin, d'une hauteur plus importante, crée une démarcation. 

La cheminée verticale, en briques rouges, à côté de l'entrée, contraste avec l'horizontalité du bâtiment et émerge comme un signal dans un environnement assez banal. L'architecte joue sur les matériaux pour distinguer les différents volumes : le bardage aluminium bleu pour les murs du bassin principal, la brique pour les volumes aveugles. 

L'auvent ressort du reste de la composition, comme détaché de la façade vitrée de la piscine. Dans l'espace du bassin principal, la structure en portique métallique est mise en évidence tant à l'intérieur qu'à l'extérieur.

Mélody Ben Haddou et Irène Lund

Sources
Archives communales de Charleroi.