Les écoles officielles du centre
Ecoles maternelles Ecoles primaires
1938 - 1954
1938 - 1954
Réalisé
Située près de la gare de Couillet, l'école du Centre regroupe plusieurs bâtiments : un espace pour les gardiennes comprenant une aire de jeux intérieure et une classe ; deux écoles, une pour filles et l'autre pour garçons, composées chacune de trois classes. Entre ces deux établissements, un poste de l'uvre nationale de l'enfance (ONE) sert de cabinet médical, d'infirmerie et de dépôt de lait.
Les classes, bureaux et locaux techniques propres à chaque entité sont séparés de la rue par un long corridor intérieur situé derrière la façade, limitant ainsi les bruits extérieurs. Invisible de la rue, la salle de gymnastique borde la large cour intérieure dans un second bâtiment.
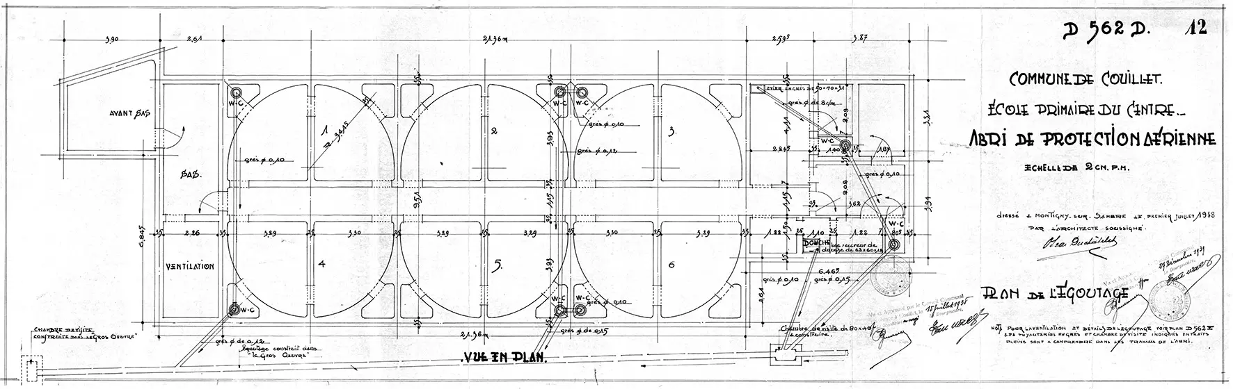
Un abri anti-aérien est construit en sous-sol. L'écriture des deux architectes est particulièrement soignée. Les soubassements en pierre reconstituée et ciselée et les briques de parement de tonalité cuir donnent une fluidité toute moderniste à ces quatre entités différentes et autonomes (chacune ayant son entrée particulière), construites en gradin, et ce, afin de se conformer au dénivelé du terrain.
Des lettres en relief se trouvaient initialement sur le bord supérieur des fenêtres du premier étage de l'ONE, reprenant l'intitulé « Écoles officielles du Centre ».
Christian Joosten
| Sources |
|---|
| Archives communales de Charleroi. |