Maison Müller
Jalon XX

Habitation unifamiliale

1976 1976
Réalisé

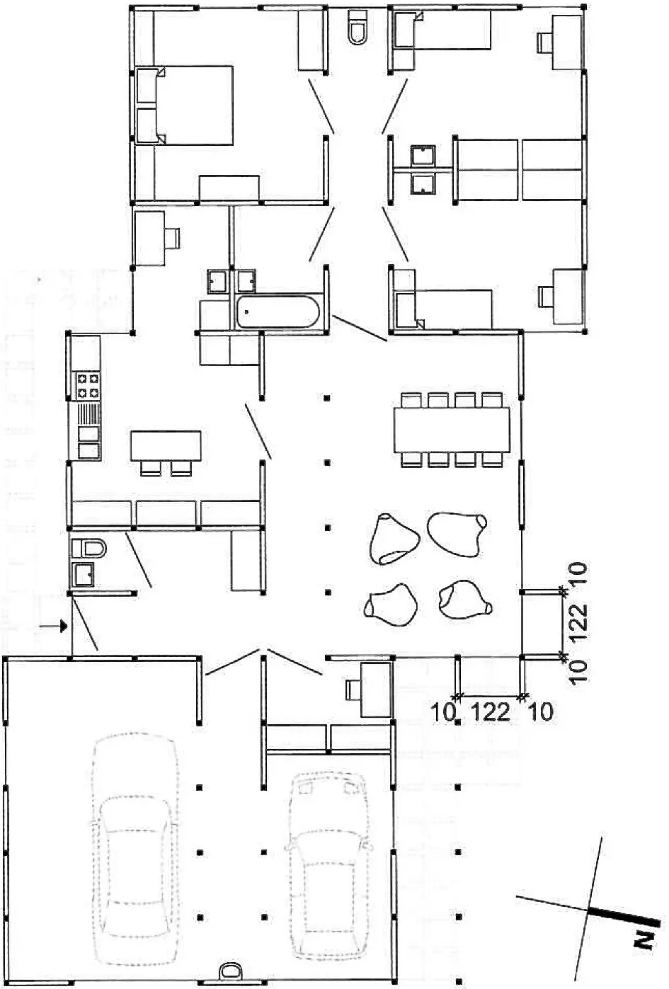
Le système en bois Patze-Englebert donne lieu à la construction de trente-sept maisons individuelles. La maison Müller est réalisée pour un couple d'enseignants, sur la base d'un catalogue qui présente un système d'ossature en bois simple, et permet aux futurs occupants de choisir le nombre et le type de baies, leur emplacement, ainsi que les panneaux de remplissage ou encore les mobiliers. 

Avec quelques itérations entre concepteur et habitants, le plan trouve une réponse synthétique. De plain-pied et connecté au jardin, le volume est rythmé par quinze travées, et l'axe d'appui central de la maison détermine l'espace de circulation.

L'ouverture des pièces à vivre entre elles, les portes sur pivot ainsi que la présence assumée du module(panneau blanc inséré dans l'ossature de bois foncé) donnent à l'ensemble un charmant aspect japonisant. 

Restée dans son jus, l'habitation est toujours occupée par ses primo-propriétaires, fiers d'avoir fait, à l'époque, ce choix avant-gardiste. Le procédé éclos cinquante ans plus tôt prouve ainsi sa résistance au temps, et son avance sur les modes et les usages.  

Cécile Vandernoot

Sources
Degavre Élodie, «Assemblages heureux» dans Les utopies de Jean Englebert, Archidoc02, Liège, GAR-ESAVL, 2017, p.66-93.